home page > Annunci immobiliari in Italia > Veneto > Venezia > Chioggia > Negozi uffici capannoni in vendita > Scheda immobile

Negozi uffici capannoni in vendita a Chioggia

COMPILA IL MODULO SOTTOSTANTE PER RICEVERE MAGGIORI INFORMAZIONI







Invia la richiesta ad altre agenzie
Accetto il trattamento dei miei dati



Commerciale immobiliare s.a.s.

Campo muneghette 208
30015 Chioggia (VE)

.041.8220227

Chioggia
Prezzo: info in agenzia
G
2
250
1



Descrizione:
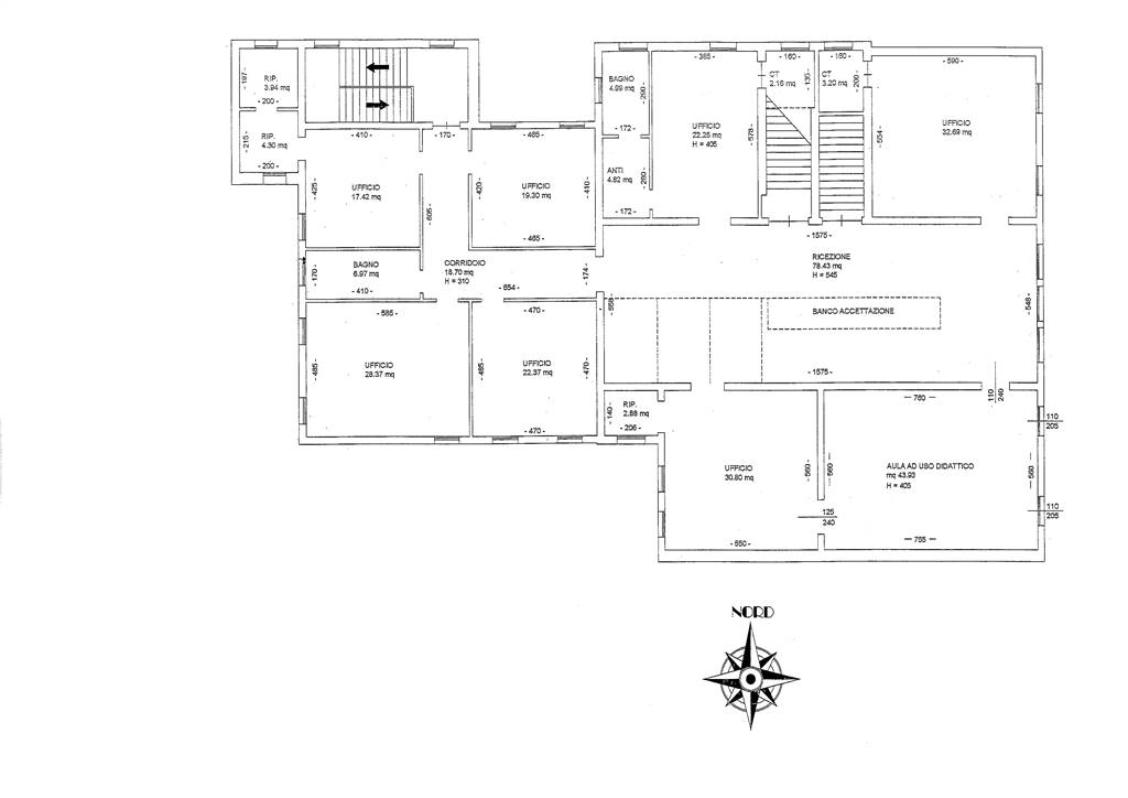
Rif. 2375 chioggia centro storico - immobile di prestigio storico e architettonico con destinazione d'uso commerciale, centralissimo nel corso del popolo di chioggia, con vista sul corso.locale di 350 mq circa al piano primo con sette uffici due bagni, tre ripostigli, ricezione e aula studio didattico, al piano secondo ulteriori 136 mq di soffitte con altezze che variano dal 2,53 al 1,00 m trattativa riservata in agenzia classe energetica: g




Caratteristiche immobile:
Codice inserzione: 1773892269
Rif. Annuncio: 2375
Provincia: Venezia
Comune: Chioggia
Superficie (Mq) : 250 Mq.
Tipo immobile: Negozi uffici capannoni
Piano: 1
Arredato:
Bagni: 2

Costi:
Prezzo info in agenzia


Efficienza energetica:
Classe energetica: G
Riscaldamento: autonomo