home page > Annunci immobiliari in Italia > Veneto > Venezia > Chioggia > Terreni in vendita > Scheda immobile

Terreni in vendita a Chioggia

COMPILA IL MODULO SOTTOSTANTE PER RICEVERE MAGGIORI INFORMAZIONI







Invia la richiesta ad altre agenzie
Accetto il trattamento dei miei dati



Commerciale immobiliare group

Via p. E. Venturini 2, sottomarina
30015 Chioggia (VE)

041.4582970

Chioggia
Prezzo: € 220.000
2
2
4975
Ultimo piano



Descrizione:
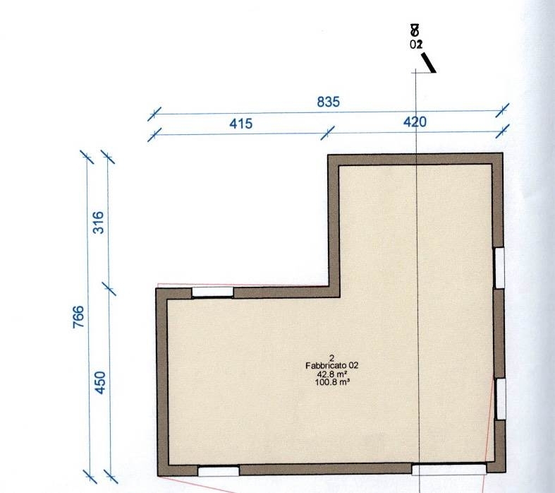
Rif. G121 borgo san giovanni di chioggia -in vendita un interessante terreno agricolo situato a chioggia, nella tranquilla zona di borgo san giovanni. Questo appezzamento di terreno si estende per 4.775 mq e offre un'ottima opportunità per chi desidera investire nel settore agricolo o realizzare un progetto personale. La proprietà prevede di realizzare due annessi rustici uno di circa 70 mq e l'altro di circa 100 mq, ideali per attività di stoccaggio o per la lavorazione dei prodotti agricoli.l'area è caratterizzata da un ambiente sereno e naturale, perfetto per chi cerca un contesto di vita a contatto con la natura. Il terreno è facilmente accessibile e presenta un ingresso indipendente, garantendo privacy e comodità. Il terreno viene ceduto con progetto approvato per ricostruzione di due rustici a pertinenza del terreno.questa è un'opportunità imperdibile per chi desidera avviare un'attività agricola o semplicemente godere di un ampio spazio all'aperto in una delle zone più belle di chioggia. Non perdere l'occasione di visitare questo terreno e scoprire tutte le sue potenzialità. Contattaci per maggiori informazioni e per fissare un appuntamento!prezzo: 220.000 eu. classe energetica: non soggetto




Caratteristiche immobile:
Codice inserzione: 1759809126
Rif. Annuncio: G121
Provincia: Venezia
Comune: Chioggia
Superficie (Mq) : 4975 Mq.
Tipo immobile: Terreni
Stato immobile: nuovo
Piano: Ultimo piano
Camere: 2
Bagni: 2

Costi:
Prezzo € 220.000


Efficienza energetica:
Classe energetica: Immobile non soggetto all'obbligo di certificazione