home page > Annunci immobiliari in Italia > Veneto > Venezia > Concordia Sagittaria > Terreni in vendita > Scheda immobile

Terreni in vendita a Concordia Sagittaria

COMPILA IL MODULO SOTTOSTANTE PER RICEVERE MAGGIORI INFORMAZIONI







Invia la richiesta ad altre agenzie
Accetto il trattamento dei miei dati



Agenzia lampo di mazzarotto giovanni srl

Via a. Sommariva 18
30026 Portogruaro (VE)

042172409    Riferimenti: Nazzareno Mazzarotto

Concordia Sagittaria
Prezzo: € 95.000
320



Descrizione:
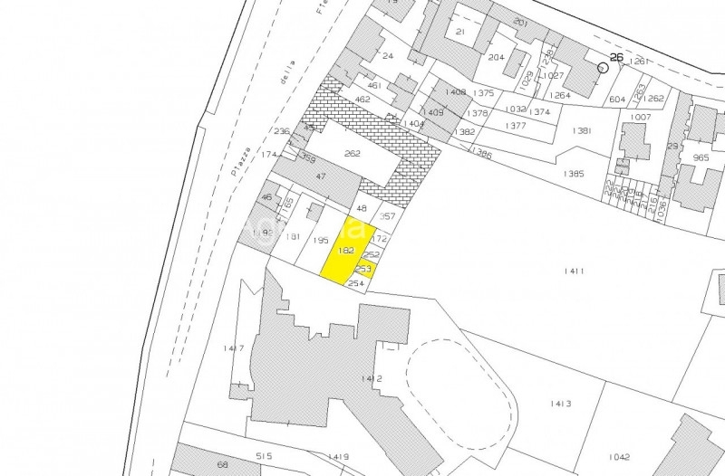
A concordia sagittaria, in pieno centro e vicino ai plessi scolastici, vendiamo terreno edificabile.concordia sagittaria è una cittadina di origine romanica molto vivace e in gran sviluppo. Si trova nelle immediate vicinanze di portogruaro e dei principali nodi logistici, autostrade e centri produttivi.il terreno si trova in una delle aree residenziali di concordia, a fianco ad un plesso scolastico e prospiciente i principali servizi.




Caratteristiche immobile:
Codice inserzione: 1764820103
Rif. Annuncio: PORTO 099
Provincia: Venezia
Comune: Concordia Sagittaria
Superficie (Mq) : 320 Mq.
Tipo immobile: Terreni

Costi:
Prezzo € 95.000


Efficienza energetica: