home page > Annunci immobiliari in Italia > Veneto > Venezia > Dolo > Case e ville indipendenti in vendita > Scheda immobile

Case e ville indipendenti in vendita a Dolo

COMPILA IL MODULO SOTTOSTANTE PER RICEVERE MAGGIORI INFORMAZIONI







Invia la richiesta ad altre agenzie
Accetto il trattamento dei miei dati



Asteaffari.com

Viale g. E l. Olivi 38
31100 Treviso

04221781118    Riferimenti: Stefano Dalto

Dolo
Prezzo: € 169.152
E
3
3
158
1
1



Descrizione:
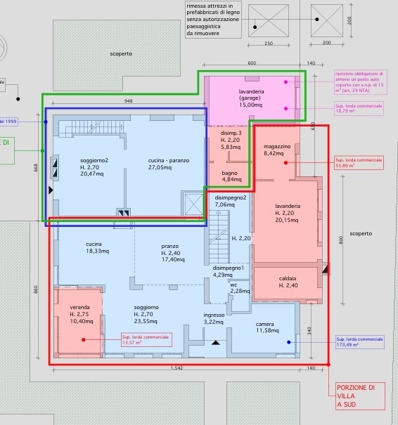
Rif. A.a.524-16vendita all'asta - villino su 3 piani in data 22 gennaio 2026descrizione: trattasi di un'abitazione in villino di 3 piani a 700 mt dal centro storico di dolo (ve)con scoperto recintato. L'unità immobiliare, della superficie commerciale complessiva di mq.158, è cosù composta: il piano interrato è destinato a magazzino e taverna, il piano terra a zona giorno con ingresso-soggiornocon vano scala per accedere al piano interrato e primo, cucina-pranzo ,disimpegno con bagno di servizio cieco,ripostiglio e magazzino, e il piano primo a zona notte con due camere matrimoniali, camera singola, bagno e terrazzo; conforme dal punto di vista edilizio, catastale e urbanistico.prezzo minimo: 169.152 eurol'immobile viene venduto tramite asta giudiziaria, ed il prezzo indicato si riferisce al prezzo minimo accettato per la partecipazione all'asta.aste-affari fornisce un servizio di assistenza e consulenza tecnica, legale, fiscale e finanziaria su acquisti all'asta e affari immobiliari, al fine di rendere più facile e sicuro l'acquisto di un immobile proveniente dal mercato giudiziario oppure da occasioni presenti sul mercato immobiliare.analisi di fattibilità, tecnica, burocratica, finanziaria, legale, esame problematiche e vincoli, conteggio costi accessori ed occulti, assistenza in tutte le fasi della procedura fino alla consegna delle chiavi dell'immobile.l'acquisto può essere finanziato tramite mutuo, e, ove possibile anche in pre-asta tramite procedura di saldo-stralcio. per info aggiuntive, prenotazione visione, consulenza ed assistenza su asta :studio di consulenza : 'aste-affari.com'info: un debitore ? chiamaci ! abbiamo soluzioni personalizzate!




Caratteristiche immobile:
Codice inserzione: 1762919545
Rif. Annuncio: A.A. 524-16
Provincia: Venezia
Comune: Dolo
Superficie (Mq) : 158 Mq.
Tipo immobile: Case e ville indipendenti
Stato immobile: usato
Anno costruzione/ristrutturazione: 1999
Piano: 1
Camere: 3
Arredato:
Posti auto scoperti: 1 posto auto
Bagni: 3
Terrazze: 1

Costi:
Prezzo € 169.152


Efficienza energetica:
Classe energetica: E
Riscaldamento: autonomo