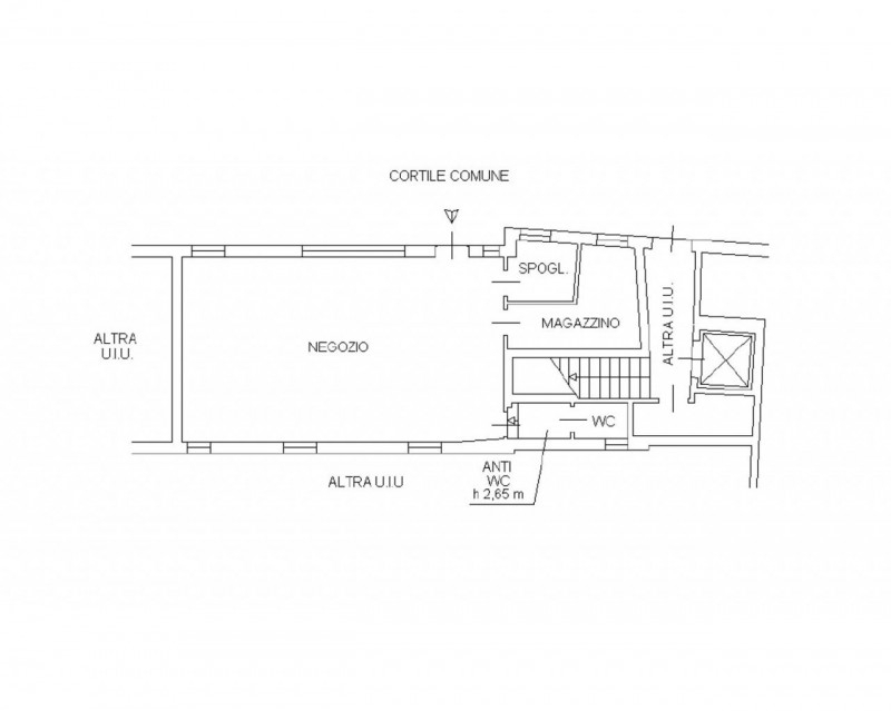
Descrizione:
Proponiamo in vendita un negozio al piano terra con superficie catastale di 74 mq, inserito in un fabbricato di maggior consistenza sviluppato su quattro livelli. L'immobile gode di accesso diretto da via giacomo matteotti e si compone di un ampio locale open space destinato alla vendita, un magazzino con annesso spogliatoio, oltre a servizi igienici con antibagno.gli spazi risultano funzionali e ben distribuiti, ideali per attività commerciali, showroom o uffici aperti al pubblico.classe energetica: d epgl,nren 539,80 kwh/m anno.un'opportunità interessante per chi cerca una soluzione pronta all'uso in una zona di forte passaggio e con buona accessibilità.