home page > Annunci immobiliari in Italia > Veneto > Venezia > Jesolo > Attività commerciali in vendita > Scheda immobile

Attività commerciali in vendita a Jesolo

COMPILA IL MODULO SOTTOSTANTE PER RICEVERE MAGGIORI INFORMAZIONI







Invia la richiesta ad altre agenzie
Accetto il trattamento dei miei dati



Asteaffari.com

Viale g. E l. Olivi 38
31100 Treviso

04221781118    Riferimenti: Stefano Dalto

Jesolo
Prezzo: € 365.206
2268
1



Descrizione:
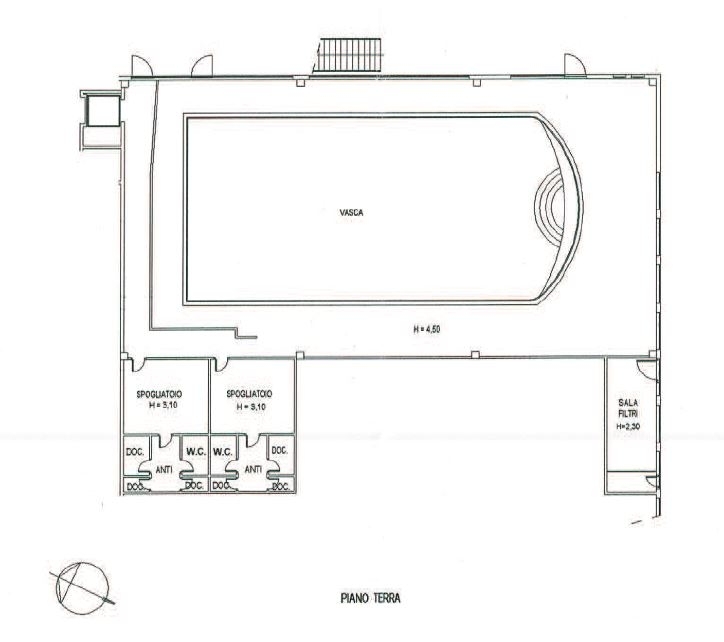
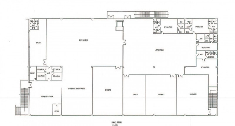
Rif. A.a.302-162 vendita all'asta - stabile commerciale/palestra in data 13 novembre 2025 descrizione immobili : immobile per esigenze sportive, sviluppato su 2 livelli fuori terra con scoperto pertinenziale. Composto al piano terra da porzione comprendente un vano piscina con spogliatoi e annessi servizi, vano tecnico; al piano primo ingresso, attesa, 4 magazzini, ufficio, ripostiglio, vari vani per attività sportive, 1 spogliatoio donne con servizi, 2 spogliatoi uomini con servizi. l'immobile viene venduto tramite asta giudiziaria, ed il prezzo indicato si riferisce al prezzo minimo accettato per la partecipazione all'asta .aste-affari fornisce un servizio di assistenza e consulenza tecnica , legale, fiscale e finanziaria su acquisti all'asta e affari immobiliari , al fine di rendere più facile e sicuro l'acquisto di un immobile proveniente dal mercato giudiziario oppure da occasioni presenti sul mercato immobiliare . analisi di fattibilità , tecnica, burocratica, finanziaria , legale , esame problematiche e vincoli , conteggio costi accessori ed occulti, assistenza in tutte le fasi della procedura fino alla consegna delle chiavi dell'immobile .l'acquisto può essere finanziato tramite mutuo , e , ove possibile , anche in pre-asta tramite procedura di saldo-stralcio .soluzioni personalizzate per i debitori .prezzo minimo base asta : euro 365.206per info aggiuntive , prenotazione visione, consulenza ed assistenza studio di consulenza : 'aste-affari.com'info :




Caratteristiche immobile:
Codice inserzione: 1759114111
Rif. Annuncio: A.A.302-162
Provincia: Venezia
Comune: Jesolo
Zona: Lido di Jesolo  
Superficie (Mq) : 2268 Mq.
Tipo immobile: Attività commerciali
Stato immobile: usato
Anno costruzione/ristrutturazione: 1998
Piano: 1
Arredato:
Tipologia giardino : Condominiale

Costi:
Prezzo € 365.206


Efficienza energetica:
Riscaldamento: autonomo