home page > Annunci immobiliari in Italia > Veneto > Venezia > Martellago > Case e ville indipendenti in vendita > Scheda immobile

Case e ville indipendenti in vendita a Martellago

COMPILA IL MODULO SOTTOSTANTE PER RICEVERE MAGGIORI INFORMAZIONI







Invia la richiesta ad altre agenzie
Accetto il trattamento dei miei dati



Agenzia immobiliare immobilzero

Piazza umberto i, 23
31059 Zero Branco (TV)

0422.489040

Martellago
Prezzo: € 310.000
3
2
135
Ultimo piano



Descrizione:
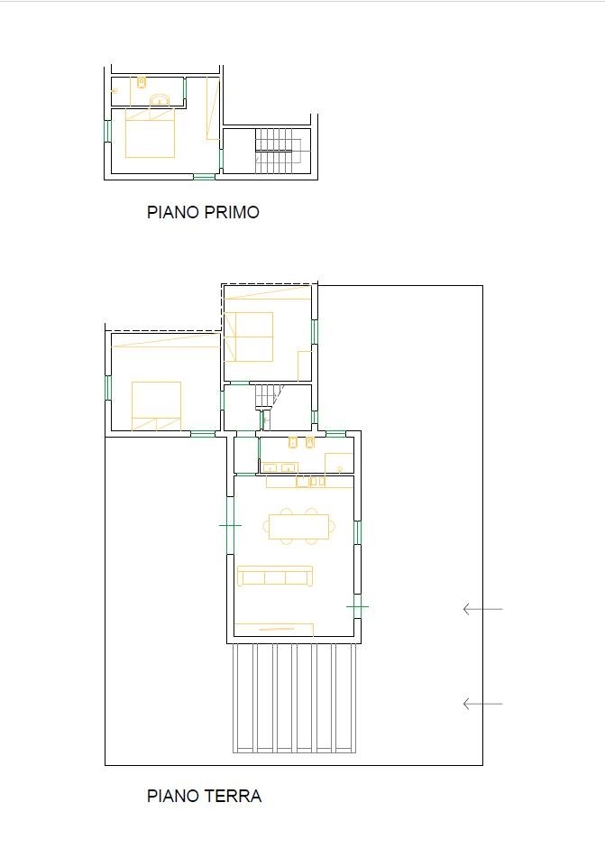
Martellago centro vendesi porzione di testa di villetta con 220mq di giardino e ampio magazzino, comodissima a tutti i servizi. La porzione offre la possibilità di ampliamento per la realizzazione di una villetta con ingresso, soggiorno con cucina a vista, 3 camere, 2 bagni, lavanderia, pompeiana esterna o garage. Prezzo attuale dell'immobile eu. 149.000, prezzo stimato dell'immobile finito eu. 320.000. Classe energetica: non soggetto




Caratteristiche immobile:
Codice inserzione: 1764211873
Rif. Annuncio: P293
Provincia: Venezia
Comune: Martellago
Superficie (Mq) : 135 Mq.
Tipo immobile: Case e ville indipendenti
Stato immobile: nuovo
Piano: Ultimo piano
Camere: 3
Bagni: 2

Costi:
Prezzo € 310.000


Efficienza energetica:
Classe energetica: Immobile non soggetto all'obbligo di certificazione
Riscaldamento: autonomo