 2
						
						2					 1300
						
						1300					 1
						
						1					
						
						Descrizione:
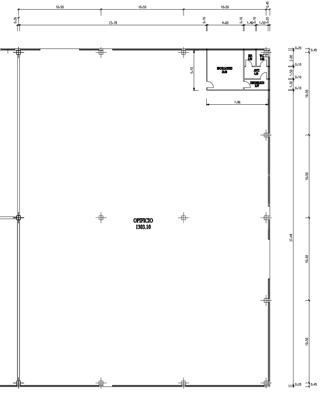
1300 mq di capannone alto 6 metri con 1 ufficio, 2 servizi, altezza sotto trave 6 metri, ampio scoperto, 2 portoni carico scarico. Per info carlo guerra 					
| Codice inserzione: | 1759189697 | 
| Rif. Annuncio: | Cod. rif 3263305ACG | 
| Provincia: | Venezia | 
| Comune: | Meolo | 
| Superficie (Mq) : | 1300 Mq. | 
| Tipo immobile: | Negozi uffici capannoni | 
| Posti auto coperti: | 1 posto auto | 
| Bagni: | 2 | 
| Prezzo | € 4.000 |