home page > Annunci immobiliari in Italia > Veneto > Venezia > Mira > Case e ville a schiera in vendita > Scheda immobile

Case e ville a schiera in vendita a Mira

COMPILA IL MODULO SOTTOSTANTE PER RICEVERE MAGGIORI INFORMAZIONI







Invia la richiesta ad altre agenzie
Accetto il trattamento dei miei dati



Asteaffari.com

Viale g. E l. Olivi 38
31100 Treviso

04221781118    Riferimenti: Stefano Dalto

Mira
Prezzo: € 62.136
F
2
1
132
Piano terra



Descrizione:
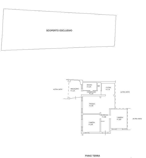
Rif. A.a.348-242vendita all'asta - appartamento con magazzino in data 20 gennaio 2026descrizione: trattasi di un'immobile sito nel comune di mira (ve). L'unità immobiliare, della superficie complessiva di mq.132, è composta da ingresso, con camere ai lati, pranzo e soggiorno, cucina aperta sul soggiorno, disimpegno che conduce al ripostiglio e bagno e infine al magazzino, collegato e aperto sul garage, nella cucina è stato realizzato un controsoffitto. Garage. Quota per 1/2 area scoperta urbana.l'immobile viene venduto tramite asta giudiziaria, ed il prezzo indicato si riferisce al prezzo minimo accettato per la partecipazione all'asta .aste-affari fornisce un servizio di assistenza e consulenza tecnica , legale, fiscale e finanziaria su acquisti all'asta e affari immobiliari , al fine di rendere più facile e sicuro l'acquisto di un immobile proveniente dal mercato giudiziario oppure da occasioni presenti sul mercato immobiliare . analisi di fattibilità , tecnica, burocratica, finanziaria , legale , esame problematiche e vincoli , conteggio costi accessori ed occulti, assistenza in tutte le fasi della procedura fino alla consegna delle chiavi dell'immobile .l'acquisto può essere finanziato tramite mutuo , e , ove possibile , anche in pre-asta tramite procedura di saldo-stralcio .soluzioni personalizzate per i debitori .prezzo minimo base asta : euro 62.136,00per info aggiuntive , prenotazione visione, consulenza ed assistenza studio di consulenza : 'aste-affari.com'info :




Caratteristiche immobile:
Codice inserzione: 1762919550
Rif. Annuncio: A.A. 348-242
Provincia: Venezia
Comune: Mira
Zona: Dogaletto  
Superficie (Mq) : 132 Mq.
Tipo immobile: Case e ville a schiera
Anno costruzione/ristrutturazione: 1967
Piano: Piano terra
Camere: 2
Arredato:
Garage: Singolo
Bagni: 1

Costi:
Prezzo € 62.136


Efficienza energetica:
Classe energetica: F
Riscaldamento: autonomo