Descrizione:
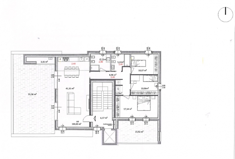
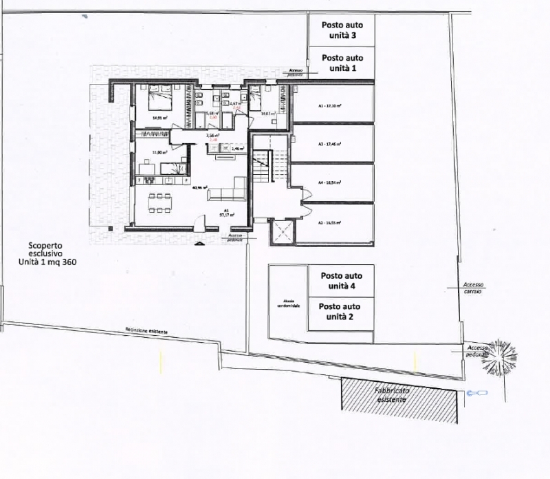
Noale - unita' 4 in una delle zone residenziali più tranquille e ricercate di noale sta nascendo un nuovo ed elegante progetto abitativo composto da sole quattro unità, pensate per offrire il massimo in termini di comfort, efficienza e qualità della vita. l'architettura moderna, l'attenzione ai dettagli e la qualità dei materiali rendono questa proposta unica nel suo genere.l'attico, situato al secondo e ultimo piano, con ascensore vanta un'esposizione libera sui quattro lati che garantisce luce naturale durante tutto l'arco della giornata e un'eccellente ventilazione degli ambienti.le grandi vetrate valorizzano ulteriormente la luminosità degli spazi interni e si aprono su un terrazzo esclusivo di circa 56 mq, ideale per rilassarsi all'aria aperta o per accogliere amici e familiari in un'atmosfera intima e riservata.all'esterno, sul terrazzo, è disponibile anche uno spazio dedicato a magazzino, perfetto per riporre oggetti e attrezzature in modo ordinato e funzionale.gli spazi interni sono stati progettati con grande cura per garantire funzionalità e comfort.la zona giorno è ampia e luminosa e si collega in modo armonioso al terrazzo, creando una continuità tra interno ed esterno che amplifica la percezione dello spazio.la zona notte è ben separata e composta da una camera matrimoniale con affaccio su terrazzo esclusivo, due camere singole e un disimpegno dove è stato previsto un pratico ripostiglio.l'attico dispone inoltre di un garage privato al piano terra, collegato direttamente al vano scala dotato di ascensore, e di un posto auto all'interno dell'area condominiale.metrature : - zona giorno 41,31 mq.- disimpegno 8,96 mq. - bagno 6,13 mq. - bagno 5,10 mq. - camera 17,14 mq. - camera 10,06 mq. - camera 10,07 mq.- ripostiglio 1,23 mq. - terrazza 55,56 mq. - angolo terrazzo 3,05 mq. - terrazza 15,92 mq. - garage 16,54 mq. caratteristiche:- ascensore- classe energetica a4- fotovoltaico 3 kw- predisposizione allarme- riscaldamento a pavimento- pompa di calore- aria condizionata canalizzata- tapparelle motorizzate- serramenti in legno - impianto vmc predisposto a puntale - 1 posto autorif. : 11.noa.a3prezzo : € 415.000,00sei interessato?per ulteriori informazioni non esitare a contattarci+39 è (ve) 30037, via cercariolo 2/aseguici anche su facebook e instagram per rimanere sempre aggiornato sulle nostre proposte.hai trovato la casa che desideravi da tanto tempo, ma hai bisogno di un mutuo per far avverare il tuo sogno? l'agenzia immobiliare i portici ti offre la consulenza di professionisti del settore che ti aiuteranno a trovare il mutuo più accessibile in base alle tue disponibilità economiche, aiutandoti ad orientarti nella scelta tra mutuo a tasso fisso, variabile o misto e ad usufruire delle agevolazioni fiscali previste. Il tutto nella massima trasparenza e professionalità.si intende precisare che gli indirizzi presenti negli annunci non sono identificativi dell'ubicazione precisa dell'immobile,danno un riferimento solo generico della zona al cliente che ricerca, al fine di tutelare la privacy e riservatezza del venditore.