Descrizione:
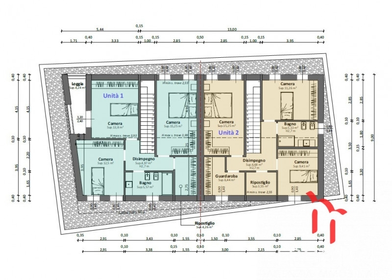
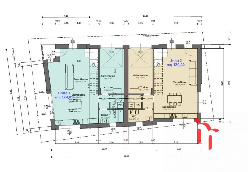
- noaleunita' 2si propone in vendita in in zona tranquilla circondata dal verde a noale nuova porzione di bifamiliare su due livelli con spazi ben distribuiti.l'immobile è progettato per garantire la massima indipendenza ed è realizzato con tecnologie di ultima generazione.il piano terra si compone da un ampia zona giorno di circa 40 mq, con ampia vetrata con vista su giardino privato, disimpegno, un bagno e una lavanderia.il piano primo, si compone da disimpegno, bagno, una camera matrimoniale con guardaroba, due camere singole e un'ulteriore ripostiglio.al piano terra un garage con accesso diretto all'immobile.l'immobile ha finiture di pregio che lo rendono unico per la sua eleganza.- caratteristiche:- classe energetica a4- impianto fotovoltaico - pompa di calore- aria condizionata canalizzata- predisposizione ventilazione meccanica- predisposizione allarme- tende oscuranti elettriche su alzanti scorrevoli- scuri a libro- metrature:- soggiorno pranzo 39,31 mq.- disimpegno 1,92 mq- bagno 3,97 mq.- lavanderia 2,48 mq.- bagno 5,13 mq.- camera matrimoniale 15,25 mq.- guardaroba 6,44 mq.- camera 9,41 mq.- camera 11,26 mq.- disimpegno 6,68 mq.- garage 15 mq.rif. : 14.noa.c2unità 2 prezzo: € 400.000,00sei interessato?per ulteriori informazioni non esitare a contattarci+39 :// (ve) 30037, via cercariolo 2/aseguici anche su facebook e instagram per rimanere sempre aggiornato sulle nostre proposte.hai trovato la casa che desideravi da tanto tempo, ma hai bisogno di un mutuo per far avverare il tuo sogno? l'agenzia immobiliare i portici ti offre la consulenza di professionisti del settore che ti aiuteranno a trovare il mutuo più accessibile in base alle tue disponibilità economiche, aiutandoti ad orientarti nella scelta tra mutuo a tasso fisso, variabile o misto e ad usufruire delle agevolazioni fiscali previste. Il tutto nella massima trasparenza e professionalità.hai già un venditore o un acquirente per il tuo immobile? affidati a noi per gestire nella massima sicurezza e professionalità tutta la pratica! grazie alla nostra assistenza arriverai al rogito nella massima tranquillità, terremo noi i contatti con il notaio e con le banche per il mutuo.se invece hai un appartamento da affittare o in affitto, possiamo consigliarti le migliori opzioni di contratto e provvedere al tuo posto a tutti gli adempimenti, come registrazione e rinnovo.si intende precisare che gli indirizzi presenti negli annunci non sono identificativi dell'ubicazione precisa dell'immobile,danno un riferimento solo generico della zona al cliente che ricerca, al fine di tutelare la privacy e riservatezza del venditore. stampe operazioni