home page > Annunci immobiliari in Italia > Veneto > Venezia > Pianiga > appartamenti in vendita > Scheda immobile

Appartamento in vendita a Pianiga

COMPILA IL MODULO SOTTOSTANTE PER RICEVERE MAGGIORI INFORMAZIONI







Invia la richiesta ad altre agenzie
Accetto il trattamento dei miei dati



Ceoldo immobiliare srl

Via cavour 32/c
35010 Vigonza (PD)

0498939911    Riferimenti: ADMIN

Pianiga
Prezzo: € 288.000
A4
3
2
137
1



Descrizione:
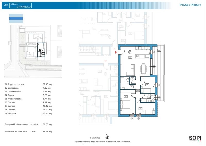
Pianiga località mellaredo centro: nuovo pronta consegna appartamento tricamere posto al primo piano con terrazza abitabile ben esposta, all'interno di palazzina di sole 7 unità servita da ascensore. La soluzione è cosù composta: ingresso, zona giorno open-space con cucina a vista ed uscita sul terrazzo di 22 mq, disimpegno, tre camere, di cui una matrimoniale e due singole, doppi servizi e lavanderia. Garage doppio al piano terra.immobile in classe a4 con impianto di riscaldamento a pavimento con pompa di calore, impianto fotovoltaico esclusivo, impianto di ventilazione meccanica controllata, aria condizionata. Serramenti interni in legno, avvolgibili esterni motorizzati in alluminio. Predisposizione allarme volumetrico e perimetrale, pavimentazione del reparto giorno e dei bagni in gres porcellanato e delle camere in legno rovere, predisposizione addolcitore acqua in garage.prezzo: euro 288.000località nelle vicinanze: vigonza, dolo, stra, santa maria di sala ,villanova , noventa padovana




Caratteristiche immobile:
Codice inserzione: 1760669414
Rif. Annuncio: 2026-08
Provincia: Venezia
Comune: Pianiga
Zona: Mellaredo  
Superficie (Mq) : 137 Mq.
Tipo immobile: Appartamento
Stato immobile: usato
Anno costruzione/ristrutturazione: 2025
Piano: 1
Camere: 3
Garage: Doppio
Tipologia giardino : Condominiale
Bagni: 2
Terrazze: 1

Costi:
Prezzo € 288.000


Efficienza energetica:
Classe energetica: A4
Indice di prestazione energetica (EPgl): 2.28 kWh/mq annui
Riscaldamento: autonomo a pavimento