Descrizione:
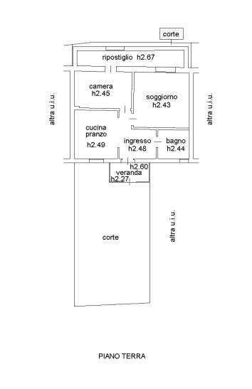
Rif. A.a.296-23vendita all'asta - appartamento al piano terra in data 27 gennaio 2026descrizione immobile: trattasi di un appartamento ubicato al piano terra di un edificio residenziale disposto su 3 livelli e sito nel comune di pramaggiore (ve) località blessaglia. L'unità immobiliare, della superficie commerciale complessiva di mq.79, è costituita da veranda, ingresso, cucina-pranzo, soggiorno, una camera, bagno, ripostiglio.l'immobile viene venduto tramite asta giudiziaria, ed il prezzo indicato si riferisce al prezzo minimo accettato per la partecipazione all'asta .aste-affari fornisce un servizio di assistenza e consulenza tecnica , legale, fiscale e finanziaria su acquisti all'asta e affari immobiliari , al fine di rendere più facile e sicuro l'acquisto di un immobile proveniente dal mercato giudiziario oppure da occasioni presenti sul mercato immobiliare . analisi di fattibilità , tecnica, burocratica, finanziaria , legale , esame problematiche e vincoli , conteggio costi accessori ed occulti, assistenza in tutte le fasi della procedura fino alla consegna delle chiavi dell'immobile .l'acquisto può essere finanziato tramite mutuo , e , ove possibile , anche in pre-asta tramite procedura di saldo-stralcio .soluzioni personalizzate per i debitori .prezzo minimo base asta : euro 17.670,00per info aggiuntive , prenotazione visione, consulenza ed assistenza studio di consulenza : 'aste-affari.com'info :