home page > Annunci immobiliari in Italia > Veneto > Venezia > Scorzè > appartamenti in vendita > Scheda immobile

Appartamento in vendita a Scorzè

COMPILA IL MODULO SOTTOSTANTE PER RICEVERE MAGGIORI INFORMAZIONI







Invia la richiesta ad altre agenzie
Accetto il trattamento dei miei dati



Moschini immobiliare gl di moschini gianluca & c. S.a.s.

Via costante gris, 27
31021 Mogliano Veneto (TV)

041455345    0415904527

Scorzè
Prezzo: € 349.000
G
3
2
101
Piano terra



Descrizione:
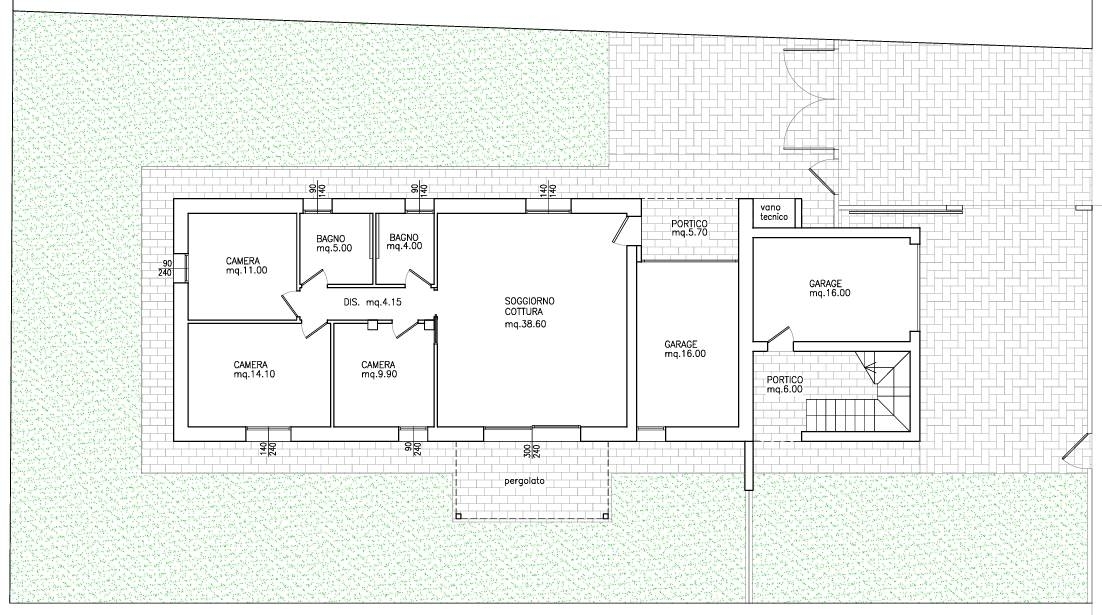
A pochi km da mogliano veneto, prossima nuova costruzione con due sole unità indipendenti, proponiamo appartamento al piano terra composto da ampio soggiorno cottura con splendida vetrata che affaccia su porticato, 3 camere da letto, 2 bagni finestrati, garage con riscaldamento a pavimento eventualmente utilizzabile come studio.l'appartamento è fornito di riscaldamento a pavimento, vmc, pannelli fotovoltaici personali con 6 kw, pompa di calore, finiture personalizzabili, grande scoperto privato su tre lati e posto auto all'interno della proprietàper info geometra gianluca moschini tel mail via costante gris n. 27, mogliano veneto (tv) classe energetica: g




Caratteristiche immobile:
Codice inserzione: 1768967628
Rif. Annuncio: 094
Provincia: Venezia
Comune: Scorzè
Superficie (Mq) : 101 Mq.
Tipo immobile: Appartamento
Stato immobile: nuovo
Piano: Piano terra
Camere: 3
Garage: Singolo
Bagni: 2

Costi:
Prezzo € 349.000


Efficienza energetica:
Classe energetica: G