home page > Annunci immobiliari in Italia > Veneto > Venezia > Scorzè > Case e ville indipendenti in vendita > Scheda immobile

Case e ville indipendenti in vendita a Scorzè

COMPILA IL MODULO SOTTOSTANTE PER RICEVERE MAGGIORI INFORMAZIONI







Invia la richiesta ad altre agenzie
Accetto il trattamento dei miei dati



Agenzia immobiliare immobilzero

Piazza umberto i, 23
31059 Zero Branco (TV)

0422.489040

Scorzè
Prezzo: € 75.000
3
2
135
Ultimo piano



Descrizione:
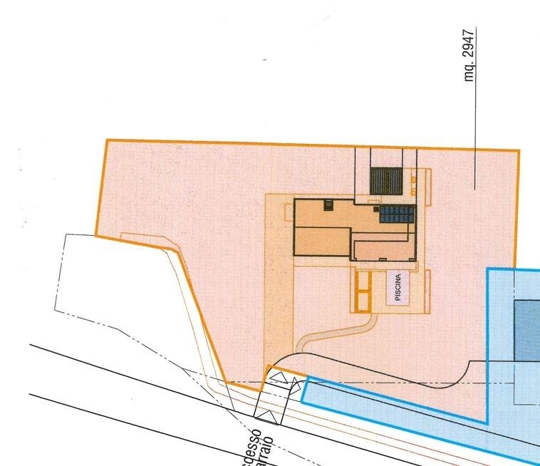
In vendita a scorzè, nella tranquilla zona di rio san martino, progetto approvato per una splendida casa singola. L'immobile si sviluppa su un unico piano terra di 135 mq e offre un'ottima distribuzione degli spazi. La casa dispone di un ampio soggiorno con cucina separata di circa 20 mq, tre camere da letto spaziose, due bagni moderni un ripostiglio e un garage con lavanderia.l'ingresso indipendente garantisce privacy e comodità, mentre il portico di 44 mq è perfetto per godere di piacevoli momenti all'aperto. La proprietà è circondata da un ampio giardino di circa 3000 mq, un vero angolo di paradiso per chi ama la natura e desidera uno spazio verde da personalizzare.questa soluzione è ideale per famiglie che cercano un'abitazione spaziosa e moderna, immersa nel verde ma comunque comoda ai servizi.il progetto può essere modificato in base alle singole esigenze.non perdere l'opportunità di visitare questa splendida casa, contattaci per maggiori informazioni! classe energetica: non soggetto




Caratteristiche immobile:
Codice inserzione: 1761706265
Rif. Annuncio: S189
Provincia: Venezia
Comune: Scorzè
Zona: Rio San Martino  
Superficie (Mq) : 135 Mq.
Tipo immobile: Case e ville indipendenti
Stato immobile: nuovo
Piano: Ultimo piano
Camere: 3
Garage: Singolo
Bagni: 2

Costi:
Prezzo € 75.000


Efficienza energetica:
Classe energetica: Immobile non soggetto all'obbligo di certificazione
Riscaldamento: autonomo