home page > Annunci immobiliari in Italia > Veneto > Venezia > Torre di Mosto > appartamenti in vendita > Scheda immobile

Appartamento in vendita a Torre di Mosto

COMPILA IL MODULO SOTTOSTANTE PER RICEVERE MAGGIORI INFORMAZIONI







Invia la richiesta ad altre agenzie
Accetto il trattamento dei miei dati



Abilio s.p.a.

Via galileo galilei 6
48018 Faenza (RA)

0289741561    0546046748    0546046747    Riferimenti: Abilio S.p.A.

Torre di Mosto
Prezzo: € 85.000
3
2
181



Descrizione:
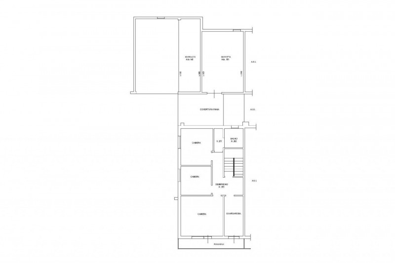
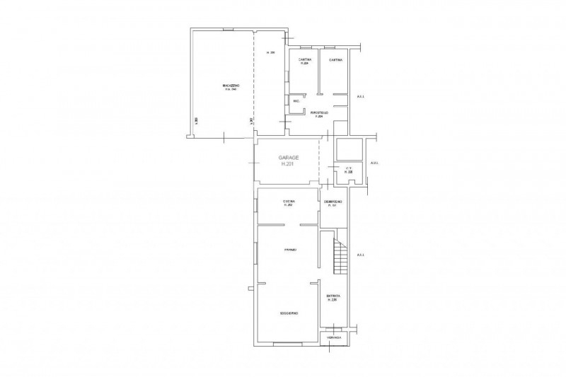
Quest'immobile viene venduto tramite asta online.nella località sant'elena, nel comune di torre di mosto (ve), proponiamo in vendita un'abitazione indipendente con garage, magazzino e area pertinenziale esclusiva, situata in una zona residenziale tranquilla e ben collegata, a soli due chilometri dal centro cittadino.il fabbricato, edificato nel 1968, si sviluppa su due livelli (piano terra e primo piano) ed è adiacente ad un'altra unità speculare. L'ingresso principale è collocato sul lato sud, fronte strada, mentre le pertinenze si trovano sul retro, lato nord. L'abitazione è composta da ingresso, soggiorno, sala da pranzo, cucina, tre camere da letto, un guardaroba, due bagni, cantina, centrale termica e disimpegni. Le finiture interne sono tipiche degli anni '70-'80, con pavimenti in piastrelle, serramenti in legno e tapparelle in pvc. La scala interna è in cemento rivestita in graniglia di marmo.il garage, posto al piano terra, è di circa 20 mq. Sul retro è presente un magazzino e un soppalco non praticabile.l'immobile presenta alcune difformità edilizie e catastali per le quali è stata avviata una pratica di regolarizzazione presso gli enti competenti.per maggiori dettagli consultare i documenti allegati.offerta minima: 85000 euro.quimmo.it: iniziativa tech del gruppo illimity specializzata nell'intermediazione digitale di beni immobili provenienti da tribunali, nuovi sviluppi immobiliari, financial institutions e libero mercato.da oltre 10 anni quimmo.it è il portale specializzato nella compravendita di immobili tramite asta giudiziaria. Il portale è infatti iscritto nel registro gestori della vendita telematica e nell'elenco dei siti web autorizzati allo svolgimento della pubblicità legale. Con quimmo puoi scegliere tra migliaia di immobili di ogni tipo e partecipare alle aste online per acquistare la soluzione più adatta alle tue esigenze.affidati all'esperienza decennale dei nostri esperti e richiedi l'assistenza gratuita per la presentazione e compilazione dell'offerta.contattaci subito.




Caratteristiche immobile:
Codice inserzione: 1759718179
Rif. Annuncio: 2537303
Provincia: Venezia
Comune: Torre di Mosto
Superficie (Mq) : 181 Mq.
Tipo immobile: Appartamento
Anno costruzione/ristrutturazione: 1968
Camere: 3
Garage: Singolo
Bagni: 2
Terrazze: 1

Costi:
Prezzo € 85.000


Efficienza energetica:
Riscaldamento: autonomo