home page > Annunci immobiliari in Italia > Veneto > Verona > Belfiore > Negozi uffici capannoni in vendita > Scheda immobile

Negozi uffici capannoni in vendita a Belfiore

COMPILA IL MODULO SOTTOSTANTE PER RICEVERE MAGGIORI INFORMAZIONI







Invia la richiesta ad altre agenzie
Accetto il trattamento dei miei dati



Studio caldiero di piazzolla patrizio - filiale caldiero

Via strà 73
37042 Caldiero (VR)

0457652922    3420723615    Riferimenti: Patrizio Piazzolla

Belfiore
Prezzo: € 170.000
139



Descrizione:
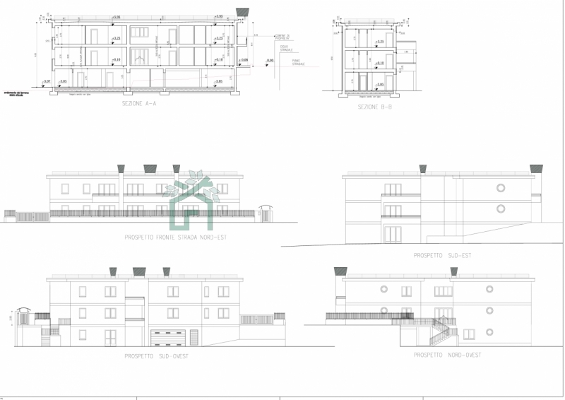
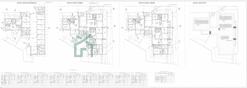
Proponiamo in esclusiva la vendita di un terreno edificabile residenziale di circa 1800mq situato nel comune di belfiore, una località rinomata per la sua tranquillità e al contempo vicinanza ai principali snodi stradali. L'immobile si trova nella zona residenziale del paese, facilmente raggiungibile da via bionde (sp39), che garantisce ottima visibilità e accesso comodo sia per mezzi privati che commerciali.attualmente sono depositati presso il comune di belfiore 2 progetti:1- realizzazione di una bifamiliare completa2- realizzazione di 9 appartamenti con garage e cantinail terreno ha accesso diretto alla strada e all'interno di esso risiede un fabbricato, attualmente ad uso di laboratorio, con potenzialità edificatorie.il prezzo indicato si intende + ivabelfiore rappresenta una scelta ideale anche dal punto di vista logistico: immersa tra campagne rigogliose ma collegata rapidamente alle città limitrofe della provincia veronese tramite arterie principali, offre qualità della vita elevata senza rinunciare ai servizi essenziali.non perdere questa opportunità unica! contatta subito la nostra agenzia per ricevere maggiori informazioni o fissare un appuntamento: saremo lieti di guidarti nella scoperta delle potenzialità offerte da questo interessante spazio commerciale.




Caratteristiche immobile:
Codice inserzione: 1761709473
Rif. Annuncio: 47
Provincia: Verona
Comune: Belfiore
Superficie (Mq) : 139 Mq.
Tipo immobile: Negozi uffici capannoni
Stato immobile: usato da riattare
Anno costruzione/ristrutturazione: 1967

Costi:
Prezzo € 170.000


Efficienza energetica:
Classe energetica: Immobile non soggetto all'obbligo di certificazione