home page > Annunci immobiliari in Italia > Veneto > Verona > Bosco Chiesanuova > Terreni in vendita > Scheda immobile

Terreni in vendita a Bosco Chiesanuova

COMPILA IL MODULO SOTTOSTANTE PER RICEVERE MAGGIORI INFORMAZIONI







Invia la richiesta ad altre agenzie
Accetto il trattamento dei miei dati



Alberto parladori

Via del lavoro 25
37021 Bosco Chiesanuova (VR)

3485469900    Riferimenti: Alberto Parladori

Bosco Chiesanuova
Prezzo: € 35.000



Descrizione:
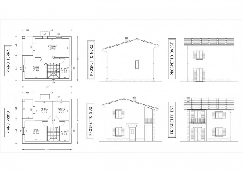
Situato nella località corbane di bosco chiesanuova, proponiamo in vendita un terreno edificabile residenziale di 442 mq.questo lotto rappresenta un'opportunità unica per realizzare la casa dei tuoi sogni, grazie ad un progetto già approvato dal comune per una villa singola disposta su due livelli. (immobile di 122 mq)al piano terra troverai uno spazioso soggiorno diviso dalla cucina, creando un ambiente ideale per momenti conviviali e famigliari. Inoltre è presente un bagno pratico ed elegante. Al primo piano sono previste tre camere da letto luminose e accoglienti, completate da un secondo bagno.il giardino privato progettato misura circa 380 mq, offrendo ampio spazio all'aperto dove poter godere della natura circostante o organizzare piacevoli barbecue con amici e familiari.in aggiunta alla proposta attuale, c'è anche la possibilità di ampliare il progetto mediante una variante che consente la costruzione di un piano seminterrato grande quanto l'impronta della casa (61 mq), perfetto per ricavare ulteriori spazi utili come garage, taverne o cantine.bosco chiesanuova è conosciuta non solo per i suoi splendidi paesaggi montani ma anche per le sue numerose opportunità ricreative: escursioni nei boschi circostanti, sport invernali nelle vicinanze e tranquillità lontano dallo stress cittadino rendono questa zona particolarmente ambita.




Caratteristiche immobile:
Codice inserzione: 1775616145
Rif. Annuncio: IA204
Provincia: Verona
Comune: Bosco Chiesanuova
Tipo immobile: Terreni

Costi:
Prezzo € 35.000


Efficienza energetica: