0456260526
 3
						
						3					 2
						
						2					 120
						
						120					 Ultimo piano
						
						Ultimo piano					
						
						Descrizione:
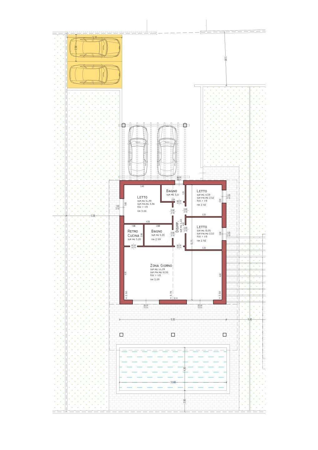
In una zona tranquilla e leggermente defilata rispetto al centro di caprino veronese, ma comunque comoda a tutti i principali servizi, sta sorgendo un nuovo e raffinato progetto residenziale composto da sole tre ville singole, ognuna pensata per offrire comfort, indipendenza e un'elevata qualità abitativa. Tutte le ville godono della possibilità di realizzare una piscina privata, ideale per valorizzare al massimo gli spazi esterni.la villa proposta è disposta interamente su un unico piano, una caratteristica sempre più ricercata per la sua comodità. Gli spazi interni sono ben distribuiti e si aprono su una luminosa zona giorno con cucina a vista, perfetta per accogliere la vita quotidiana e i momenti conviviali. La zona notte ospita tre camere da letto, di cui una matrimoniale e due doppie, oltre a due bagni finestrati e un pratico ripostiglio.esternamente, la villa è circondata da un giardino privato su tre lati, offrendo ampio spazio per godere della vita all'aria aperta. Un grande porticato, direttamente collegato alla zona giorno, si affaccia su una terrazza che diventa la naturale estensione dell'abitazione, ideale per pranzi e cene all'aperto. Sono presenti inoltre due posti auto coperti, comodi e riservati.l'abitazione sarà realizzata con materiali di alta qualità e con una particolare attenzione al risparmio energetico. Il riscaldamento a pavimento assicura un calore omogeneo in tutti gli ambienti, mentre una pompa di calore ad alta efficienza permetterà di gestire sia il riscaldamento che il raffrescamento in modo sostenibile. L'impianto fotovoltaico da 6 kw garantirà una produzione autonoma di energia, riducendo sensibilmente i costi in bolletta. Gli infissi in pvc con triplo vetro offriranno un eccellente isolamento termico e acustico, mentre le tapparelle elettriche e le zanzariere a scomparsa miglioreranno ulteriormente la vivibilità quotidiana.questa villa rappresenta una soluzione ideale per chi desidera una casa indipendente, moderna e altamente efficiente dal punto di vista energetico, immersa in un contesto verde e tranquillo ma a pochi minuti dal centro del paese.una proposta unica, con disponibilità limitata a sole tre unità. Contattaci per conoscere tutti i dettagli, visionare i progetti e fissare una visita in cantiere.prezzo richiesto: eu. 580.000,00classe energetica: a4riferimento: 022/1 classe energetica: a4					
| Codice inserzione: | 1751255619 | 
| Rif. Annuncio: | 022/1 | 
| Provincia: | Verona | 
| Comune: | Caprino Veronese | 
| Superficie (Mq) : | 120 Mq. | 
| Tipo immobile: | Case e ville indipendenti | 
| Stato immobile: | nuovo | 
| Piano: | Ultimo piano | 
| Camere: | 3 | 
| Bagni: | 2 | 
| Prezzo | € 580.000 |