Descrizione:
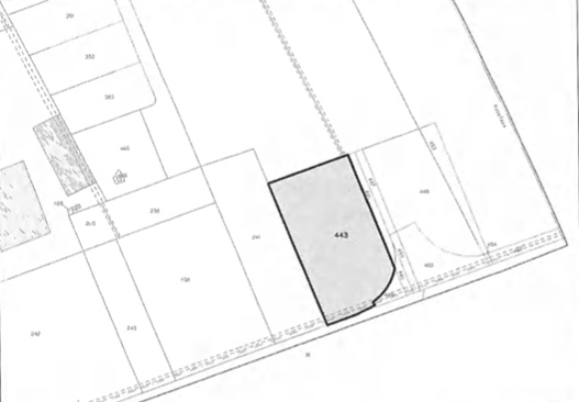
Casaleone (vr) via venera - quota di 1/2 del diritto di piena proprietà di terreno di circa mq 5.293 catastali a vocazione edificatoria, a fini commerciali o di servizio, con porzione destinata a parcheggio, ricadente parte in zona territoriale omogenea d2 'zone produttive di espansione' e parte in zona territoriale omogena pp 'aree a parcheggio', situato in via venera s.n.c., in fregio alla strada regionale n. 10, al quale si accede da un percorso in fase di realizzazione che si diparte verso nord dalla rotatoria presente..immobile soggetto a e. I. N.ro lotto 2 - tribunale di veronaprezzo base d'asta € 95.000,00offerta minima di partecipazione € 95.000,00prossimo esperimento: 00/00/0000per visite ed informazioni chiamare il o la nostra agenzia presente da anni sul mercato, ricerca le procedure esecutive e concorsuali fornendo una consulenza tecnico legale, bancaria completa per la partecipazione all'asta per l'acquisto dell'immobile, che comprende:•analisi della procedura esecutiva, valutazione del compendio immobiliare.•assistenza e partecipazione all'asta fino alla chiusura dell'operazione e all'assegnazione dell'immobile tramite, decreto di trasferimento o acquisto con rogito notarile.•ricerca migliore tipologia di finanziamento con gli istituiti di credito convenzionati con il tribunale di verona per l'acquisto dell'immobile in asta.da molti anni garantiamo un servizio sicuro e completo, volto al soddisfacimento della clientela più esigente che spazia dall'investitore al costruttore, dall'azienda multinazionale al privato.ci occupiamo con successo di:•consulenza finanziaria, con ricerca e valutazione di mutui bancari e/o leasing•gestione delle locazioni di patrimoni immobiliari•marketing e comunicazione immobiliarei nostri servizi:•multi-pubblicazione dell'offerta immobiliare sui migliori canali online per la massima visibilità e tempi di conclusione più rapidi•valutazioni immobiliari•certificazioni energetiche, oggi obbligatorie per la vendita e la locazione di tutti gli immobili•verifiche di regolarità urbanistiche e catastalio registrazioni telematiche contratti di locazione (registrazione, rinnovo, proroga, risoluzione) a 50,00 € + ivao registrazioni telematiche contratti di locazione con cedolare secca a 30,00 € + iva