0452051392
 4
						
						4					 2
						
						2					 175
						
						175					 Piano terra
						
						Piano terra					
						
						Descrizione:
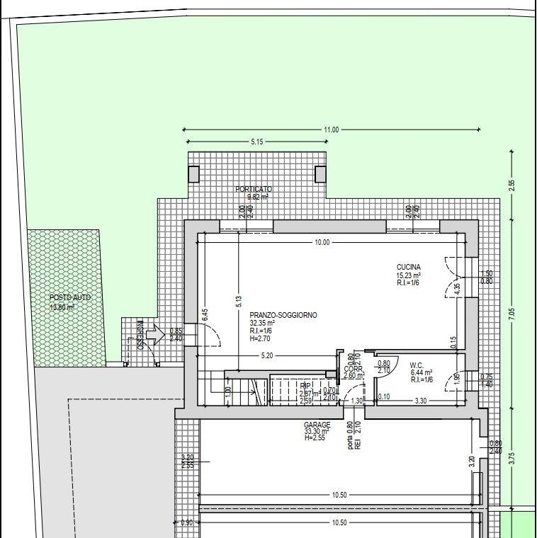
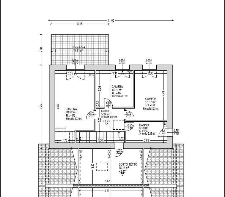
Scopri questo esclusiva soluzione situata in una zona residenziale signorile, perfetta per chi cerca tranquillità e verde circostante senza rinunciare alla comodità di tutti i servizi. L'intervento si compone di due unità completamente indipendenti, offrendo spazi versatili e personalizzabili. Al piano terra, troverai un'ampia zona soggiorno-pranzo con cucina a vista, bagno e ripostiglio, oltre a un porticato che si affaccia su un giardino privato che circonda la casa su tre lati e che da la possibilità di creare una piscina interrata.al piano primo, la casa offre tre camere da letto, di cui due matrimoniali e una singola, un bagno e un ulteriore stanza di 19 mq da adibire come altra camera da letto o locale hobby/studio. La terrazza al piano primo è ideale per momenti di relax all'aperto. Completano la proprietà un garage doppio e un posto auto scoperto privato al piano terra. Tra le possibilità di personalizzazione, potrai creare una cabina armadio o un bagno padronale nella camera matrimoniale, o realizzare una piscina privata per godere al meglio delle giornate estive. Non perdere l'occasione di acquistare questa splendida abitazione!nel suo insieme l'immobile si compone di:- zona soggiorno con cucina a vista di 48 mq- 3 camere da letto (due matrimoniali e singola)- locale studio/hobby- 2 bagni- giardino di proprietà- garage doppio e posto auto scoperto- porticato e terrazzoottimo capitolato costruttivo - posizione tranquilla e comoda a tutti i servizi - ideale come abitazione primaria - possibilità di personalizzare gli interni! possibilita' di visionare un esempio di villetta finita !consegna primavera 2026nel caso in cui dovessi vendere il tuo immobile e prenotare la nuova abitazione ti offriamo il nostro servizio di - valutazione gratuita - per permetterti di fare questo importante passaggio nella massima tranquillità!prezzo richiesto: eu. 540.000.00classe energetica: a4riferimento: 03 classe energetica: a4					
| Codice inserzione: | 1751341986 | 
| Rif. Annuncio: | 003 | 
| Provincia: | Verona | 
| Comune: | Castelnuovo del Garda | 
| Superficie (Mq) : | 175 Mq. | 
| Tipo immobile: | Case e ville indipendenti | 
| Stato immobile: | nuovo | 
| Piano: | Piano terra | 
| Camere: | 4 | 
| Garage: | Singolo | 
| Bagni: | 2 | 
| Terrazze: | 1 | 
| Prezzo | € 540.000 |