home page > Annunci immobiliari in Italia > Veneto > Verona > Costermano > Case e ville indipendenti in vendita > Scheda immobile

Case e ville indipendenti in vendita a Costermano

COMPILA IL MODULO SOTTOSTANTE PER RICEVERE MAGGIORI INFORMAZIONI







Invia la richiesta ad altre agenzie
Accetto il trattamento dei miei dati



Mediocasa immobiliare srl

Str. Porta palio 70/c
37121 Verona

0458012557

Costermano
Prezzo: € 60.000
2
2
316
1



Descrizione:
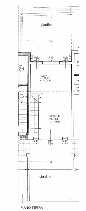
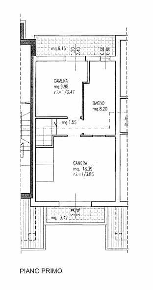
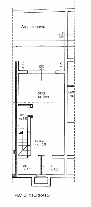
Costermano sul garda (vr) via alcide de gasperi 2f - quota per la 1/2 di proprietà di proprietà di casa a schiera con autorimessa di pertinenza, cosù composta: al piano terra zona giorno con corti esclusive sul fronte e retro; al primo piano due camere da letto, un bagno, due balconi; al piano seminterrato autorimessa, deposito, lavanderia, w.c.immobile soggetto a l.g. N.ro lotto unico - tribunale di veronaprezzo base d'asta € 60.000,00offerta minima di partecipazione € 60.000,00prossimo esperimento: per visite ed informazioni chiamare il o la nostra agenzia presente da anni sul mercato, ricerca le procedure esecutive e concorsuali fornendo una consulenza tecnico legale, bancaria completa per la partecipazione all'asta per l'acquisto dell'immobile, che comprende:•analisi della procedura esecutiva, valutazione del compendio immobiliare.•assistenza e partecipazione all'asta fino alla chiusura dell'operazione e all'assegnazione dell'immobile tramite, decreto di trasferimento o acquisto con rogito notarile.•ricerca migliore tipologia di finanziamento con gli istituiti di credito convenzionati con il tribunale di verona per l'acquisto dell'immobile in asta.da molti anni garantiamo un servizio sicuro e completo, volto al soddisfacimento della clientela più esigente che spazia dall'investitore al costruttore, dall'azienda multinazionale al privato.ci occupiamo con successo di:•vendita e locazione di singole unità immobiliari residenziali e commerciali•vendite in blocco e/o frazionate, di interi edifici, residenziali, commerciali e industriali.•vendite in cantiere di nuove costruzioni, con lo sviluppo dei servizi connessi al cantiere•consulenza finanziaria, con ricerca e valutazione di mutui bancari e/o leasing•gestione delle locazioni di patrimoni immobiliari•marketing e comunicazione immobiliarei nostri servizi:•multi-pubblicazione dell'offerta immobiliare sui migliori canali online per la massima visibilità e tempi di conclusione più rapidi•valutazioni immobiliari•certificazioni energetiche, oggi obbligatorie per la vendita e la locazione di tutti gli immobili•verifiche di regolarità urbanistiche e catastalio registrazioni telematiche contratti di locazione (registrazione, rinnovo, proroga, risoluzione) a 50,00 € + ivao registrazioni telematiche contratti di locazione con cedolare secca a 30,00 € + iva




Caratteristiche immobile:
Codice inserzione: 1773027561
Rif. Annuncio: GB09042026
Provincia: Verona
Comune: Costermano
Superficie (Mq) : 316 Mq.
Tipo immobile: Case e ville indipendenti
Stato immobile: usato
Piano: 1
Camere: 2
Garage: Singolo
Bagni: 2

Costi:
Prezzo € 60.000


Efficienza energetica:
Classe energetica: Immobile non soggetto all'obbligo di certificazione
Riscaldamento: autonomo