home page > Annunci immobiliari in Italia > Veneto > Verona > Dolcè > Negozi uffici capannoni in vendita > Scheda immobile

Negozi uffici capannoni in vendita a Dolcè

COMPILA IL MODULO SOTTOSTANTE PER RICEVERE MAGGIORI INFORMAZIONI







Invia la richiesta ad altre agenzie
Accetto il trattamento dei miei dati



Quimmo agency srl

Via galileo galilei 6
48018 Faenza (RA)

0299944698

Dolcè
Prezzo: € 290.000
3
720



Descrizione:
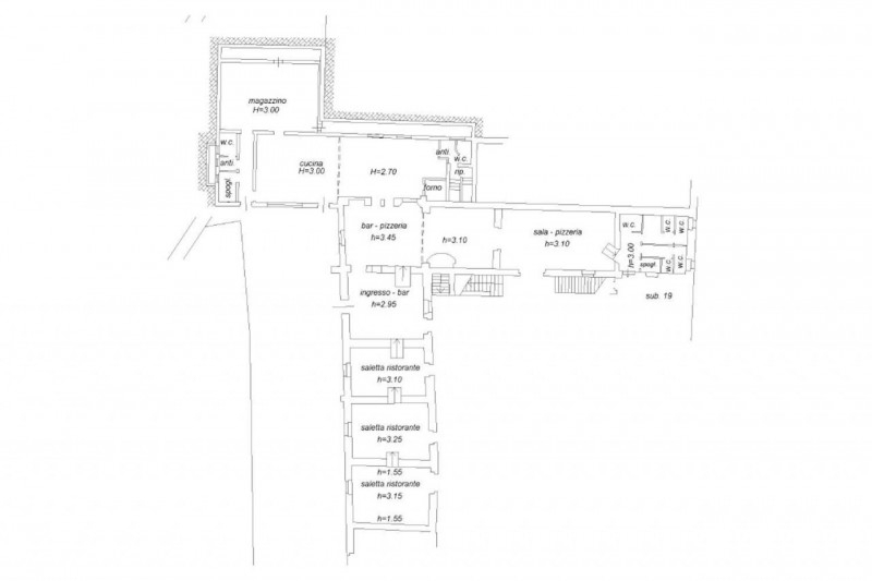
Questo locale commerciale, precedentemente utilizzato come ristorante, ubicato nella frazione peri di dolcè, nella provincia di verona. La sua posizione a nord del comune lo rende facilmente accessibile, a soli 7,5 km dal centro di dolcè, attraverso la strada statale 12.il locale si compone di quattro sale ristorante, un bar, una cucina, un magazzino, sei bagni e due spogliatoi. Questi locali si sviluppano su due ali del compendio e affacciano su una corte esclusiva interna.nel piano interrato è presente un deposito, ideale per lo stoccaggio di forniture o attrezzature. Inoltre, distaccato dal corpo principale, si trova un altro vano magazzino.adiacente alla corte esclusiva, c'è un appezzamento di terra utilizzabile come parcheggio per i clienti o per altri utilizzi.questo immobile offre molte possibilità, sia per chi desidera continuare l'attività di ristorazione, sia per chi vuole trasformarlo in qualcosa di nuovo.superficie lorda negozio: circa 687 mqsuperficie lorda deposito: circa 111 mqpiena proprietà:c/1 (cf): foglio 13 particella 124 subalterno 33c/2 (cf): foglio 13 particella 124 subalterno 16, 18, 20t (cf): foglio 13 particella 260il prezzo è da intendersi iva esclusa (tipicamente aliquota pari al 22%). La proprietà si rende disponibile all'applicazione del reverse charge iva.




Caratteristiche immobile:
Codice inserzione: 1758250501
Rif. Annuncio: 23550
Provincia: Verona
Comune: Dolcè
Superficie (Mq) : 720 Mq.
Tipo immobile: Negozi uffici capannoni
Stato immobile: usato
Bagni: 3

Costi:
Prezzo € 290.000


Efficienza energetica:
Riscaldamento: autonomo