Descrizione:
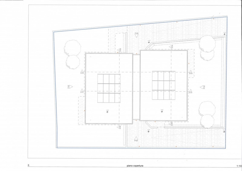
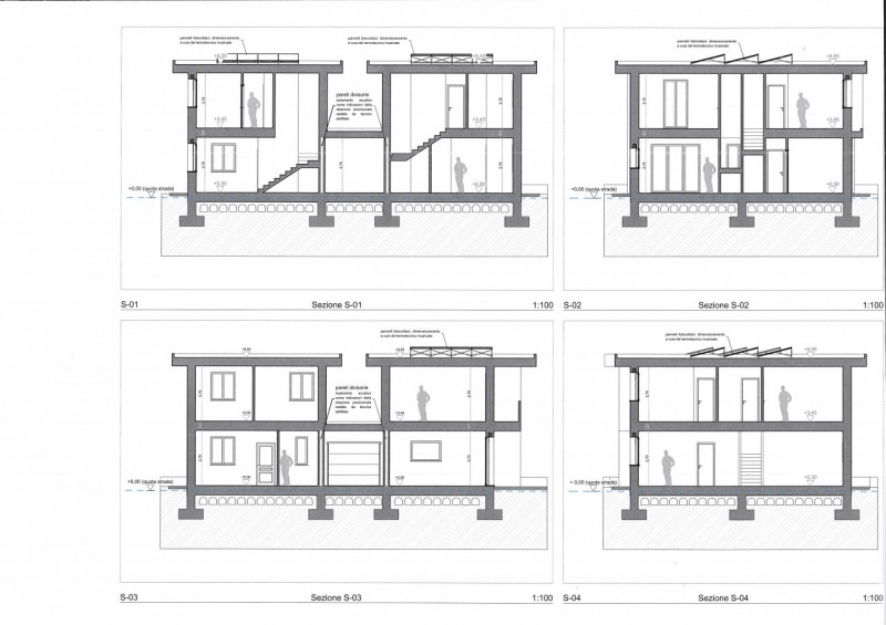
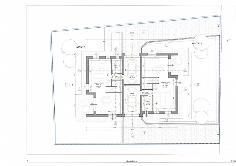
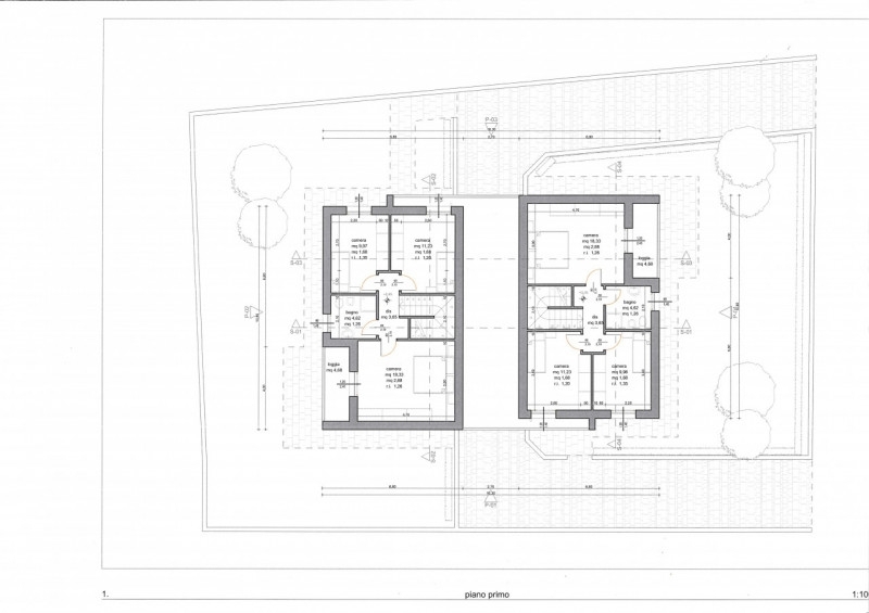
Isola della scala: in fase di costruzione nuova in classe a4, a poca distanza dal centro, in tranquilla e comoda zona residenziale con aree verdi e parcheggi, nuova iniziativa di una costruzione bifamiliare ognuna dotata di ingresso carraio e pedonale autonomo.entrambe le abitazioni sono composte da un luminoso soggiorno/cucina di 42mq, bagno, porticato ed autorimessa al piano terra; tre spaziose camere, bagno e loggia al piano primo; l'unità 1 avrà un area esterna di proprietà di circa 140mq, mentre l'unità 2 un'area esterna di circa 200mq.entrambe le soluzioni sono personalizzabili negli spazi e nelle finiture.il capitolato prevede, tra le altre caratteristiche, un isolamento termico di classe a, isolamento acustico di ultima generazione, pavimenti in gress di grande formato, serramenti in pvc con struttura a 5 camere con zanzariere e avvolgibili in alluminio coibentato, vmc, riscaldamento a pavimento con pompa di calore, impianto fotovoltaico da 3 kw.il prezzo qui proposto si riferisce all'unità 1 ultimata, esclusa iva, tasse, spese notarili ed agenzia.consegna entro 12 mesi dal preliminare.