home page > Annunci immobiliari in Italia > Veneto > Verona > Pescantina > appartamenti in vendita > Scheda immobile

Appartamento in vendita a Pescantina

COMPILA IL MODULO SOTTOSTANTE PER RICEVERE MAGGIORI INFORMAZIONI







Invia la richiesta ad altre agenzie
Accetto il trattamento dei miei dati



Kairos srl

Via roveggia 29/c
37121 Verona

3312882664    Riferimenti: Michele Marogna

Pescantina
Prezzo: € 258.000
E
2
2
100
Piano terra



Descrizione:
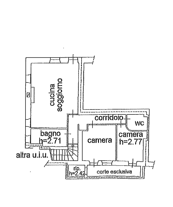
Appartamento trilocale situato nel cuore di balconi, tra le zone più ricercate di pescantina. con una superficie generosa, questa proprietà è stata ristrutturata e offre un ambiente tradizionale e accogliente.l'appartamento si sviluppa su un unico livello con due camere da letto, due bagni e un ripostiglio. Le stanze ampie e luminose, sono perfette per ogni esigenza abitativa. la spaziosa taverna rappresenta uno spazio versatile che può essere utilizzato come area giochi, studio o sala hobby. uno dei punti forti della proprietà è il piccolo giardino esterno privato, ideale per godere del sole in totale privacy o per ospitare pranzi all'aperto con amici e familiari. inoltre, la disponibilità di parcheggi liberi nelle immediate vicinanze rende la soluzione ancora più pratica.situata vicino alle principali vie di comunicazione, l'abitazione permette facili spostamenti verso la città e il lago senza rinunciare alla tranquillità della zona residenziale.




Caratteristiche immobile:
Codice inserzione: 1771991509
Rif. Annuncio: BAL258
Provincia: Verona
Comune: Pescantina
Zona: Balconi  
Superficie (Mq) : 100 Mq.
Tipo immobile: Appartamento
Stato immobile: ristrutturato
Piano: Piano terra
Camere: 2
Bagni: 2

Costi:
Prezzo € 258.000


Efficienza energetica:
Classe energetica: E
Indice di prestazione energetica (EPgl): 201.98 kWh/mq annui
Riscaldamento: autonomo