home page > Annunci immobiliari in Italia > Veneto > Verona > Peschiera del Garda > Case e ville indipendenti in vendita > Scheda immobile

Case e ville indipendenti in vendita a Peschiera del Garda

COMPILA IL MODULO SOTTOSTANTE PER RICEVERE MAGGIORI INFORMAZIONI







Invia la richiesta ad altre agenzie
Accetto il trattamento dei miei dati



Borgo roma 2 snc

Legnago 88
37121 Verona

0454594085    Riferimenti: Simone Barrile

Peschiera del Garda
Prezzo: € 790.000
A4
3
3
240
1



Descrizione:
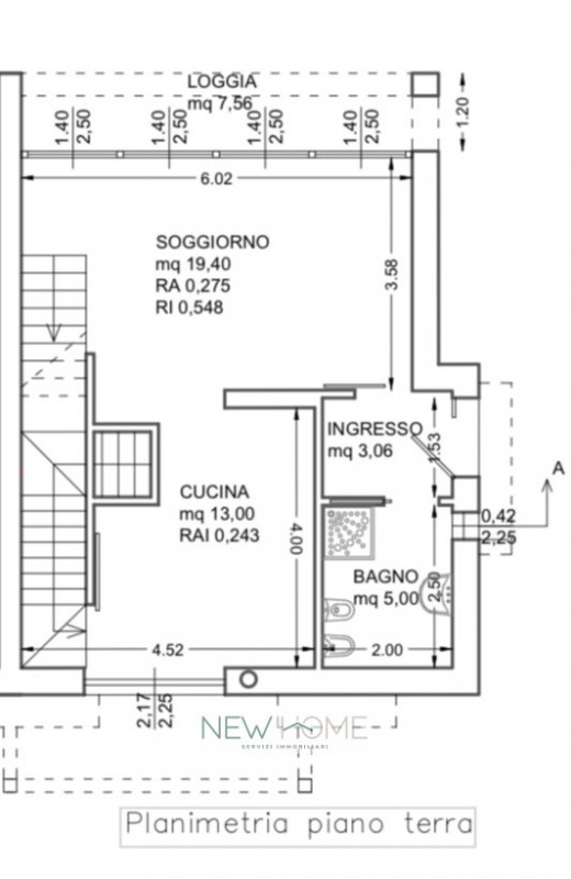
Peschiera del garda - ultima disponibilita'in fase di costruzione proponiamo ampia villa bifamigliare, entrando dall'ingresso indipendente ci si trova in un ampia zona giorno dalla quale si può accedere direttamente al giardino di circa 200 mq.la zona living è servita da un bagno finestrato e gode di ampie vetrate che danno sul giardino ed il lago di garda.proseguendo al piano primo si trovano tre camere da letto e doppi servizi, all'ultimo piano dell'abitazione si trova un ampio terrazzo/dependance.al piano interrato si trova un box auto ed una taverna.la soluzione offre ampi spazi e criteri costruttivi all'avanguardia di risparmio energetico di comfort abitativi.




Caratteristiche immobile:
Codice inserzione: 1757990709
Rif. Annuncio: 4627201
Provincia: Verona
Comune: Peschiera del Garda
Superficie (Mq) : 240 Mq.
Tipo immobile: Case e ville indipendenti
Stato immobile: usato
Anno costruzione/ristrutturazione: 2026
Piano: 1
Camere: 3
Garage: Doppio
Bagni: 3 + lavanderia
Terrazze: 1

Costi:
Prezzo € 790.000


Efficienza energetica:
Classe energetica: A4
Indice di prestazione energetica (EPgl): 1 kWh/mq annui
Riscaldamento: autonomo a pavimento