home page > Annunci immobiliari in Italia > Veneto > Verona > Povegliano Veronese > appartamenti in vendita > Scheda immobile

Appartamento in vendita a Povegliano Veronese

COMPILA IL MODULO SOTTOSTANTE PER RICEVERE MAGGIORI INFORMAZIONI







Invia la richiesta ad altre agenzie
Accetto il trattamento dei miei dati



La tua casa villafranca

Corso vittorio emanuele ii 1
37069 Villafranca di Verona (VR)

0456303837    Riferimenti: Federico Martina

Povegliano Veronese
Prezzo: € 270.000
2
2
Piano terra



Descrizione:
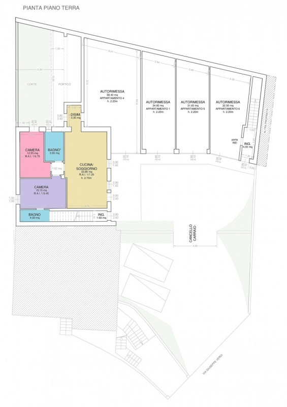
In tranquillo contesto residenziale a povegliano veronese, proponiamo in prossima costruzione un moderno trilocale al piano terra con spazio esterno di proprietà e ampio garage.l'immobile sarà composto da:- ampia zona giorno di circa 34 mq;- due camere da letto;- due bagni comodi e ben distribuiti;- spazio esterno di proprietà, ideale per vivere l'outdoor in ogni stagione;- grosso garage doppio.costruzione ad alta efficienza energetica.si effettuano prenotazioniper maggiori informazioni o per concordare un appuntamento, potete contattarci al numero o all'indirizzo e-mail:




Caratteristiche immobile:
Codice inserzione: 1755053338
Rif. Annuncio: 4610708
Provincia: Verona
Comune: Povegliano Veronese
Tipo immobile: Appartamento
Stato immobile: nuovo
Piano: Piano terra
Camere: 2
Garage: Doppio
Bagni: 2

Costi:
Prezzo € 270.000


Efficienza energetica:
Riscaldamento: autonomo