home page > Annunci immobiliari in Italia > Veneto > Verona > San Giovanni Lupatoto > Negozi uffici capannoni in vendita > Scheda immobile

Negozi uffici capannoni in vendita a San Giovanni Lupatoto

COMPILA IL MODULO SOTTOSTANTE PER RICEVERE MAGGIORI INFORMAZIONI







Invia la richiesta ad altre agenzie
Accetto il trattamento dei miei dati



Ars vivendi immobiliare

Piazza alcide de gasperi 22
37057 San Giovanni Lupatoto (VR)

0454622995    Riferimenti: Giulio Soardo

San Giovanni Lupatoto
Prezzo: € 79.000
69
Piano terra



Descrizione:
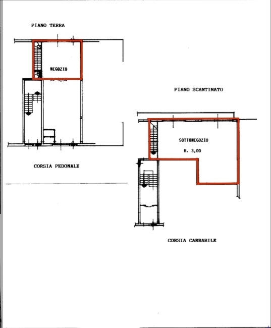
Pozzo: proponiamo in vendita locale commerciale con vetrina e magazzino al piano interrato.l'immobile è cosù composto:piano terra- salone di circa 30 mqpiano interrato- ampio salone attrezzatomaggiori informazioni in agenzia.prezzo: 79.000 €ape: in fase di certificazionerif: 438




Caratteristiche immobile:
Codice inserzione: 1774582831
Rif. Annuncio: 438
Provincia: Verona
Comune: San Giovanni Lupatoto
Zona: Pozzo  
Superficie (Mq) : 69 Mq.
Tipo immobile: Negozi uffici capannoni
Piano: Piano terra

Costi:
Prezzo € 79.000


Efficienza energetica: