home page > Annunci immobiliari in Italia > Veneto > Verona > San Martino Buon Albergo > Negozi uffici capannoni in vendita > Scheda immobile

Negozi uffici capannoni in vendita a San Martino Buon Albergo

COMPILA IL MODULO SOTTOSTANTE PER RICEVERE MAGGIORI INFORMAZIONI







Invia la richiesta ad altre agenzie
Accetto il trattamento dei miei dati



Gruppo apecasa s.r.l.

Via ponte 31/a
37036 San Martino Buon Albergo (VR)

0458320057

San Martino Buon Albergo
Prezzo: € 600.000
G
770



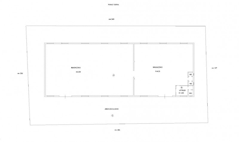
Descrizione:
A san martino buon albergo, nelle vicinanze delle tangenziali e dell'autostrada a4, proponiamo in vendita un capannone di 770 mq con area esterna di manovra sui quattro lati di circa 1000 mq. L'immobile è dotato di servizi igienici, ufficio; altezza interna di 4,40 metri e ingresso carraio indipendente. Possibilità di valutare separatamente impianto fotovoltaico da 60kw. Attualmente l'immobile dà una resa (affitto e impianto) del 10%. Occasione irripetibile per investimento.




Caratteristiche immobile:
Codice inserzione: 1773978076
Rif. Annuncio: MV181
Provincia: Verona
Comune: San Martino Buon Albergo
Superficie (Mq) : 770 Mq.
Tipo immobile: Negozi uffici capannoni
Anno costruzione/ristrutturazione: 1970

Costi:
Prezzo € 600.000


Efficienza energetica:
Classe energetica: G
Indice di prestazione energetica (EPgl): 454.8 kWh/mc annui