home page > Annunci immobiliari in Italia > Veneto > Verona > Zevio > Case e ville a schiera in vendita > Scheda immobile

Case e ville a schiera in vendita a Zevio

COMPILA IL MODULO SOTTOSTANTE PER RICEVERE MAGGIORI INFORMAZIONI







Invia la richiesta ad altre agenzie
Accetto il trattamento dei miei dati



Ars vivendi immobiliare

Piazza alcide de gasperi 22
37057 San Giovanni Lupatoto (VR)

0454622995    Riferimenti: Giulio Soardo

Zevio
Prezzo: € 395.000
A4
3
2
166
1



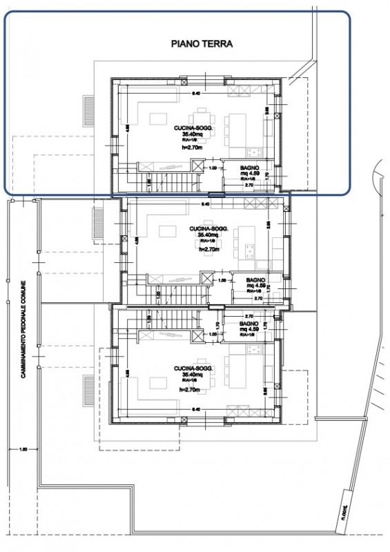
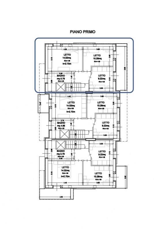
Descrizione:
Campagnola di zevio: proponiamo in vendita villetta a schiera angolare con giardino esclusivo in classe a4.l'unità si compone di:piano terra- soggiorno/cucina open space;- bagno finestrato;- giardino di circa 140 mq;piano primo- camera matrimoniale;- camera singola;- camera singola;- balcone;- bagno finestrato.piano interrato- cantina/taverna;- garage doppio;- due posti auto esclusivi.la casa è dotata di serramenti in pvc con triplo vetro-camera basso-emissivi, impianto di ventilazione meccanica controllata (vmc) già installato, isolamento acustico tra le unità abitative, riscaldamento a pavimento in pompa di calore (senza utilizzo del gas), impianto fotovoltaico da 3 kw, tapparelle motorizzate.maggiori informazioni in agenzia.prezzo: 395.000 €.classe energetica: a4.rif.: 409




Caratteristiche immobile:
Codice inserzione: 1763092365
Rif. Annuncio: 409
Provincia: Verona
Comune: Zevio
Zona: Campagnola  
Superficie (Mq) : 166 Mq.
Tipo immobile: Case e ville a schiera
Stato immobile: nuovo
Anno costruzione/ristrutturazione: 2026
Piano: 1
Camere: 3
Garage: Doppio
Bagni: 2

Costi:
Prezzo € 395.000


Efficienza energetica:
Classe energetica: A4
Riscaldamento: autonomo a pavimento