home page > Annunci immobiliari in Italia > Veneto > Vicenza > Camisano Vicentino > Negozi uffici capannoni in affitto > Scheda immobile

Negozi uffici capannoni in affitto a Camisano Vicentino

COMPILA IL MODULO SOTTOSTANTE PER RICEVERE MAGGIORI INFORMAZIONI







Invia la richiesta ad altre agenzie
Accetto il trattamento dei miei dati



Pesavento alfonso

Via chiesa 8/a
35010 Villafranca Padovana (PD)

3482813473    3482813473    Riferimenti: Alfonso Pesavento

Camisano Vicentino
Prezzo: € 390
B
98
1



Descrizione:
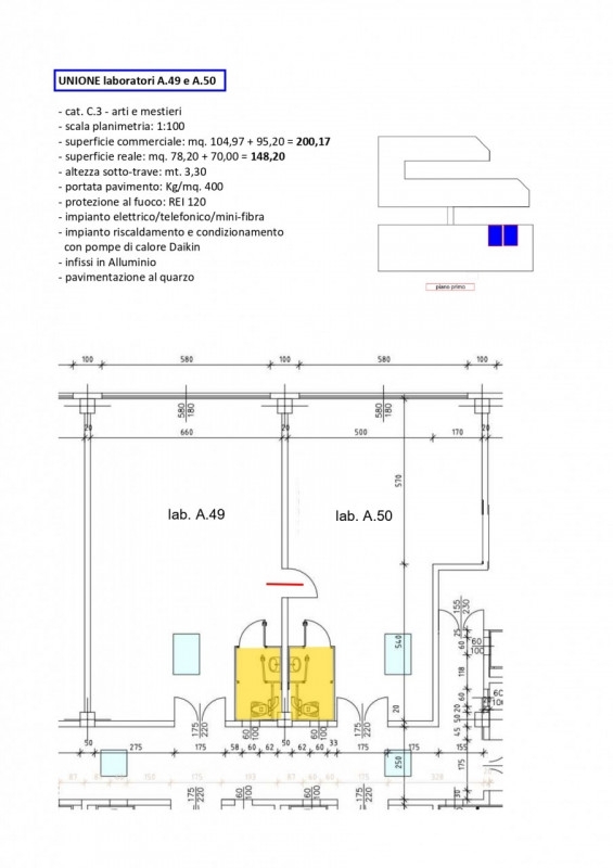
Cerchi uno spazio laboratorio moderno e conveniente? questo immobile in affitto è la soluzione perfetta! con una superficie di 98 metri quadrati (78 reali) , offre ampi spazi per il tuo business. Le spese condominiali sono incredibilmente basse, appena 24 euro al mese. Situato in una posizione strategica, questo ufficio garantisce comodità e accessibilità ottime per la tua attività. Fa parte di un contesto con molte attività che portano un ottimo movimento. Non lasciarti sfuggire questa opportunità, contattaci oggi stesso per prenotare una visita!c'è la possibilità di affittare il laboratorio in accoppiata con altro laboratorio adiacente di superficie di 89 mq (reali70) per un totale di quasi 150 mq.per ogni informazione contattaci




Caratteristiche immobile:
Codice inserzione: 1776653290
Rif. Annuncio: L01
Provincia: Vicenza
Comune: Camisano Vicentino
Superficie (Mq) : 98 Mq.
Tipo immobile: Negozi uffici capannoni
Posti auto scoperti: 1 posto auto

Costi:
Prezzo € 390


Efficienza energetica:
Classe energetica: B
Indice di prestazione energetica (EPgl): 245.27 kWh/mc annui