home page > Annunci immobiliari in Italia > Veneto > Vicenza > Castegnero > appartamenti in vendita > Scheda immobile

Appartamento in vendita a Castegnero

COMPILA IL MODULO SOTTOSTANTE PER RICEVERE MAGGIORI INFORMAZIONI







Invia la richiesta ad altre agenzie
Accetto il trattamento dei miei dati



Palladio re group

Viale del lavoro 36
36100 Vicenza

0444341859    Riferimenti: Fabio Salvadore

Castegnero
Prezzo: € 50.000
3
1
114
Piano terra



Descrizione:
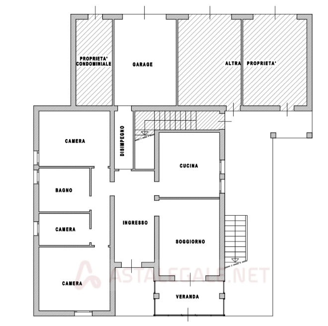
Un'affascinante opportunità immobiliare situata nel cuore di vicenza. Questo appartamento al piano terra è parte di un edificio composto da tre unità abitative sovrapposte, ciascuna dotata del proprio garage al piano terra.l'immobile si presenta con una comoda disposizione degli spazi interni: all'ingresso ci accoglie un corridoio che conduce, sulla destra, ad un luminoso soggiorno e alla cucina ben attrezzata. A sinistra troviamo il disimpegno che porta alla zona notte composta da tre camere da letto spaziose e un bagno funzionale.alla fine del corridoio d'ingresso vi è l'accesso diretto al garage, utilizzabile anche come ripostiglio per soddisfare le esigenze quotidiane. Inoltre, la proprietà include uno spazio esterno esclusivo dove è stata realizzata una veranda vetrata su tre lati; questa struttura ha ottenuto concessione edilizia in sanatoria ma non risulta ancora registrata nella scheda catastale.la posizione strategica dell'appartamento offre facile accesso ai servizi locali quali negozi, scuole e mezzi pubblici rendendola ideale sia per famiglie che per professionisti. La storicità e la bellezza architettonica di vicenza arricchiscono ulteriormente questo immobile unico nel suo genere.non perdere l'occasione di visitare questa splendida soluzione abitativa! contatta subito la nostra agenzia per maggiori informazioni o per fissare una visita.




Caratteristiche immobile:
Codice inserzione: 1775183996
Rif. Annuncio: V12-07
Provincia: Vicenza
Comune: Castegnero
Zona: Villaganzerla  
Superficie (Mq) : 114 Mq.
Tipo immobile: Appartamento
Stato immobile: usato da riattare
Piano: Piano terra
Camere: 3
Garage: Singolo
Bagni: 1

Costi:
Prezzo € 50.000


Efficienza energetica: