home page > Annunci immobiliari in Italia > Veneto > Vicenza > Isola Vicentina > Negozi uffici capannoni in vendita > Scheda immobile

Negozi uffici capannoni in vendita a Isola Vicentina

COMPILA IL MODULO SOTTOSTANTE PER RICEVERE MAGGIORI INFORMAZIONI







Invia la richiesta ad altre agenzie
Accetto il trattamento dei miei dati



Immobiliare motta sas

S.S. Pasubio, 12
36030 Costabissara (VI)

+39 0444 557692

Isola Vicentina
Prezzo: € 155.000
128



Descrizione:
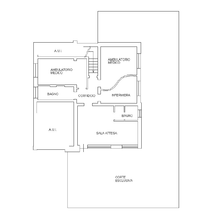
Castelnovo di isola vicentina ambulatorio/ufficio/studio privato al piano terra con giardino privatoin posizione comoda e ben visibile, proponiamo ambulatorio medico recentemente ristrutturato, situato al piano terra con ingresso indipendente e vetrina fronte strada. L'immobile è ideale per studi medici, professionali o attività direzionali grazie alla sua funzionale distribuzione degli spazi e all'ottima accessibilità.°Ÿ©º composizione interna:ampia sala d'attesadue uffici/ambulatoridoppio servizio igienicolocale cantina al piano interratoposti auto riservatigiardino di proprietà, perfetto per eventuali ampliamenti o spazi esterni dedicati°Ÿ¢ destinazione d'uso: direzionale°Ÿ·ï¸ classe energetica: d°ŸŒ soluzione ideale per chi cerca uno spazio pronto all'uso, in un contesto curato e recentemente rinnovato.contattaci per maggiori informazioni o per fissare una visita!




Caratteristiche immobile:
Codice inserzione: 1758237605
Rif. Annuncio: 31296
Provincia: Vicenza
Comune: Isola Vicentina
Superficie (Mq) : 128 Mq.
Tipo immobile: Negozi uffici capannoni

Costi:
Prezzo € 155.000


Efficienza energetica: