0289741561 0546046748 0546046747 Riferimenti: Abilio S.p.A.
 3
						
						3					 1
						
						1					 133
						
						133					
						
						Descrizione:
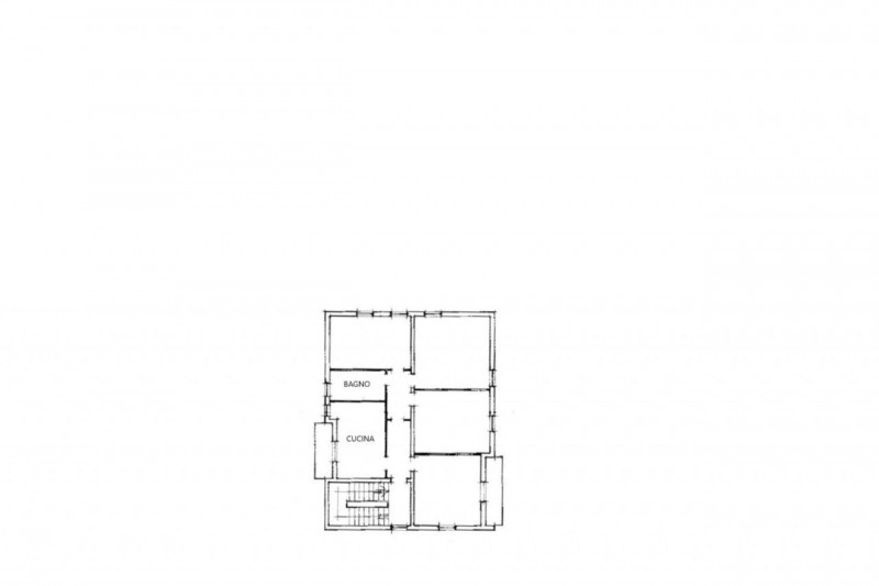
Quest'immobile viene venduto tramite asta online.quota di 833/9999 di appartamento, sito in monticello conte otto (vi), via brenta 18. Unità posta in una palazzina che si sviluppa su due piani fuori terra, composta da due unità immobiliari indipendenti, ubicata nella zona sud del comune.l'appartamento, posto al piano primo, è catastalmente costituito da una scala di accesso indipendente dal piano terra al primo, ingresso-corridoio, soggiorno con terrazzino, cucina con secondo terrazzino, un locale di disimpegno al bagno e alle tre camere.l'unità è dotata di annessa autorimessa con ripostiglio ubicata in altro fabbricato accessibile da corte comune.sono presenti difformità, meglio specificate in perizia (pag 2).i beni mobili presenti all'interno non sono oggetto della presente vendita.per maggiori dettagli consultare la documentazione allegata.superfici catastaliappartamento 133 mqautorimessa 39 mqquota di 833/9999 di piena proprietà di:appartamento (cf): foglio 7 particella 532 subalterno 2 cat. A/2autorimessa (cf): foglio 7 particella 532 subalterno 4 cat. C/6sono compresi nella vendita i proporzionali diritti di comproprietà su beni comuni e parti di uso comune.quimmo.it: iniziativa tech del gruppo illimity specializzata nell'intermediazione digitale di beni immobili provenienti da tribunali, nuovi sviluppi immobiliari, financial institutions e libero mercato.da oltre 10 anni quimmo.it è il portale specializzato nella compravendita di immobili tramite asta giudiziaria. Il portale è infatti iscritto nel registro gestori della vendita telematica e nell'elenco dei siti web autorizzati allo svolgimento della pubblicità legale. Con quimmo puoi scegliere tra migliaia di immobili di ogni tipo e partecipare alle aste online per acquistare la soluzione più adatta alle tue esigenze.affidati all'esperienza decennale dei nostri esperti e richiedi l'assistenza gratuita per la presentazione e compilazione dell'offerta.contattaci subito.					
| Codice inserzione: | 1759373014 | 
| Rif. Annuncio: | 25209 | 
| Provincia: | Vicenza | 
| Comune: | Monticello Conte Otto | 
| Superficie (Mq) : | 133 Mq. | 
| Tipo immobile: | Appartamento | 
| Stato immobile: | usato | 
| Camere: | 3 | 
| Tipologia giardino : | Condominiale | 
| Bagni: | 1 | 
| Terrazze: | 2 | 
| Prezzo | € 6.075 |