home page > Annunci immobiliari in Italia > Veneto > Vicenza > Montorso Vicentino > Case e ville indipendenti in vendita > Scheda immobile

Case e ville indipendenti in vendita a Montorso Vicentino

COMPILA IL MODULO SOTTOSTANTE PER RICEVERE MAGGIORI INFORMAZIONI







Invia la richiesta ad altre agenzie
Accetto il trattamento dei miei dati



Ti vendo casa s.r.l.

Via corso venezia 110a
37047 San Bonifacio (VR)

3294016293    Riferimenti: Marco Zambon

Montorso Vicentino
Prezzo: € 370.000
A3
3
3
340
1
1



Descrizione:
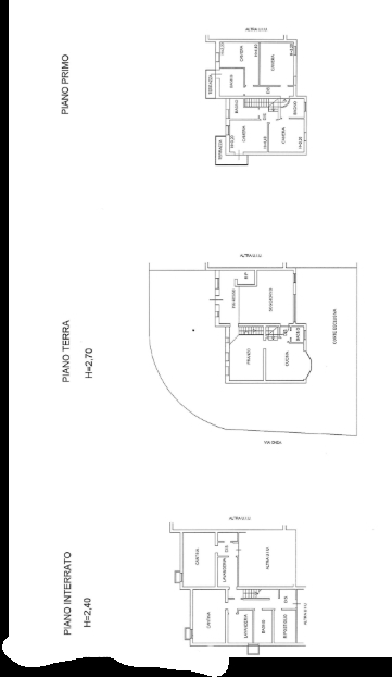
Chi si accontenta si adatta. Chi vuole di più raddoppia.a montorso vicentino, nella tranquilla zona di ponte cocco, ti aspetta una bifamiliare di testa di 280 mq, finita nel 2015 e curata in ogni dettaglio.un'abitazione nata per chi non si accontenta delle solite metrature, ma sogna spazio, comfort e indipendenza.al piano terra trovi un salotto ampio e luminoso con camino, un secondo soggiorno con stufa, una cucina moderna con porticato esterno perfetta per pranzi e serate in compagnia.al piano superiore, tre camere da letto: una matrimoniale con bagno, una singola e una padronale con cabina armadio e jacuzzi.completano la casa una taverna con camino, lavanderia, tre bagni, e due garage doppi da 38 mq ciascuno.all'esterno, un giardino privato dove respirare libertà e silenzio, in un contesto riservato ma comodo al centro.dotata di serramenti moderni e pannelli fotovoltaici, questa casa unisce spazio, efficienza e qualità costruttiva. se siete una famiglia che sogna una casa vera, spaziosa e pronta da vivere, questa è la soluzione giusta per voi.




Caratteristiche immobile:
Codice inserzione: 1764130017
Rif. Annuncio: VillaBifamiliare
Provincia: Vicenza
Comune: Montorso Vicentino
Zona: Ponte Cocco  
Superficie (Mq) : 340 Mq.
Tipo immobile: Case e ville indipendenti
Stato immobile: usato
Anno costruzione/ristrutturazione: 2015
Piano: 1
Camere: 3
Garage: Doppio
Posti auto scoperti: 1 posto auto
Bagni: 3 + lavanderia
Terrazze: 1

Costi:
Prezzo € 370.000


Efficienza energetica:
Classe energetica: A3
Indice di prestazione energetica (EPgl): 200 kWh/mq annui
Riscaldamento: autonomo a pavimento