0444887063
 1
						
						1					 80
						
						80					
						
						Descrizione:
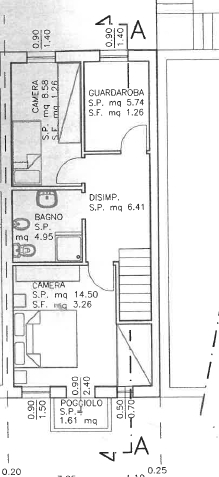
In zona tranquilla di pojana, proponiamo casetta a schiera disposta su due livelli, funzionale e comoda ai principali servizi.al piano terra si trova un soggiorno con cucina open space, pratico e ben distribuito. Al primo piano sono presenti due camere da letto, un bagno e un ripostiglio.all?esterno è presente un piccolo scoperto privato.l?immobile si trova in contesto tranquillo e facilmente accessibile.una soluzione semplice e funzionale, adatta a chi cerca un?abitazione indipendente di dimensioni contenute in una zona comoda e ben servita.a tutela della privacy l'indirizzo indicato non corrisponde all'esatta posizione dell'immobile. Per maggiori informazioni chiamare la ns. Sede professionecasa di noventa vicentina in via matteotti n° 113, al numero rif. P151					
| Codice inserzione: | 1761871204 | 
| Rif. Annuncio: | Rif P151VRG | 
| Provincia: | Vicenza | 
| Comune: | Pojana Maggiore | 
| Superficie (Mq) : | 80 Mq. | 
| Tipo immobile: | Case e ville a schiera | 
| Bagni: | 1 | 
| Prezzo | € 139.000 |