home page > Annunci immobiliari in Italia > Veneto > Vicenza > Schio > Negozi uffici capannoni in vendita > Scheda immobile

Negozi uffici capannoni in vendita a Schio

COMPILA IL MODULO SOTTOSTANTE PER RICEVERE MAGGIORI INFORMAZIONI







Invia la richiesta ad altre agenzie
Accetto il trattamento dei miei dati



Houselife

Via lago di garda 80
36015 Schio (VI)

0445.575106    Riferimenti: INFO

Schio
Prezzo: € 490.000
3
1000
1
1



Descrizione:
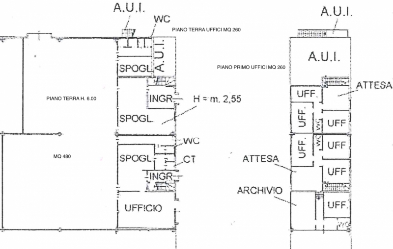
Schio - z.i: capannone industriale di mq 1.000 circa h 6,00 mt con impianti, con terreno esterno ad uso esclusivo di mq 1.000 circa. Cl. En. G. Euro 490.000. Per informazioni trattasi di capannone ad uso industriale in prefabbricato di cemento di mq 750 circa al piano terra e mq 250 di uffici al piano primo h 3,00 servito da scala interna, da ristrutturare in parte.la parte al piano terra con altezza totale di mt 6,00 ha un'area di mq 500 circa, la parte sottostante gli uffici misura mq 250 sono h 3.00 mt, dove abbiamo spogliatoi, servizi, mensa. al piano primo abbiamo uffici, servizi e un appartamento.ideale per produzione di ogni genere, montaggi, carpenterie leggere, lavorazioni meccaniche, depositi ecc...l'immobile è fornito di impianto elettrico di illuminazione, da verificare.entrata carraia con cancello elettrico, un portone di accesso al capannone.area esterna asfaltata con facilità di manovranb. Le immagini sono fornite al solo scopo illustrativo e pubblicitarioa tutela della privacy, informiamo che l'indirizzo dell' immobile è puramente indicativo. Cl. En. G.houselife☎️ ✉️




Caratteristiche immobile:
Codice inserzione: 1764562980
Rif. Annuncio: HL1408
Provincia: Vicenza
Comune: Schio
Superficie (Mq) : 1000 Mq.
Tipo immobile: Negozi uffici capannoni
Stato immobile: usato
Anno costruzione/ristrutturazione: 1980
Piano: 1
Posti auto scoperti: 1 posto auto
Bagni: 3

Costi:
Prezzo € 490.000


Efficienza energetica: