Descrizione:
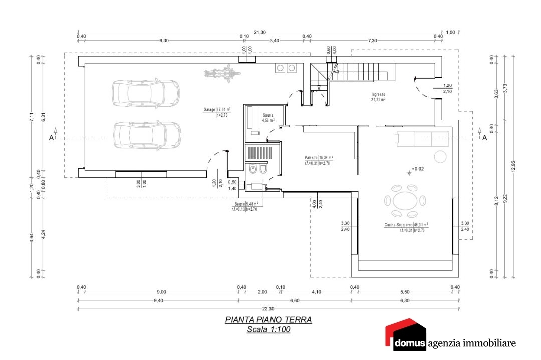
Thiene: all'interno di una lottizzazione recente posta in zona conca vicinissima ai servizi e locali terziari, lotto di terreno edificabile con superficie di 821 mq, una superficie copribile massima di 205 mq, ben 1371 mc disponibili e altezza massima 7,50 mt. Terreno ideale per la costruzione di una casa singola di cui si allega un progetto già ideato per l'approvazione ed autorizzazione comunale. Ancora, possibilità di realizzare una bifamiliare o piccoli appartamenti. La posizione risulta molto soleggiata complice l'ottima esposizione. Anche la posizione, vicino all'area verde pubblica e circondata da edifici singoli, con una strada chiusa al traffico veicolare e dedicata alle poche abitazioni che vi accedono. Interessante anche per l'investitore immobiliare.