0445520611 Riferimenti: Dario Dall'Igna
 2450
						
						2450					
						
						Descrizione:
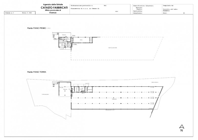
Proponiamo in vendita un ampio capannone di circa 2.450 mq, situato all'interno di una vasta area complessiva di 4.000 mq.l'immobile è dotato di un tetto a shed completamente rifatto e offre spazi generosi con un'altezza a trave che raggiunge i 6,20 metri e al soffitto fino a 8,50 metri. Questo rende il capannone particolarmente adatto per attività industriali di zona e magazzino.in aggiunta alla struttura principale, l'immobile include anche una palazzina uffici adiacente di circa 250 mq che necessita di ristrutturazione ma offre grandi potenzialità grazie al suo collegamento interno col fabbricato principale.la posizione strategica nel comune di torrebelvicino assicura accessibilità alle principali vie comunicative della zona. Questa localizzazione offre vantaggi logistici significativi per le aziende che cercano visibilità e facilità nei trasporti.non perdere questa occasione! per maggiori informazioni o per organizzare una visita sul posto, contattaci al numero 					
| Codice inserzione: | 1758596398 | 
| Rif. Annuncio: | 48 | 
| Provincia: | Vicenza | 
| Comune: | Torrebelvicino | 
| Superficie (Mq) : | 2450 Mq. | 
| Tipo immobile: | Negozi uffici capannoni | 
| Prezzo | info in agenzia |