home page > Annunci immobiliari in Italia > Veneto > Treviso > Castelfranco Veneto > Negozi uffici capannoni in affitto > Scheda immobile

Negozi uffici capannoni in affitto a Castelfranco Veneto

COMPILA IL MODULO SOTTOSTANTE PER RICEVERE MAGGIORI INFORMAZIONI







Invia la richiesta ad altre agenzie
Accetto il trattamento dei miei dati



Berno immobiliare

Via delle mimose 2/a
31033 Castelfranco Veneto (TV)

04231840123    Riferimenti: Maurizio Berno

Castelfranco Veneto
Prezzo: € 1.000
2
1
305
Piano terra



Descrizione:
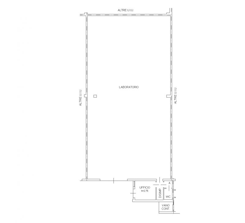
Porzione di capannone artigianale di 305 mq con piccolo ufficio e bagno.situato in contesto produttivo all'interno di un'area recintata con aree scoperte condominiali.




Caratteristiche immobile:
Codice inserzione: 1772682124
Rif. Annuncio: MB219
Provincia: Treviso
Comune: Castelfranco Veneto
Superficie (Mq) : 305 Mq.
Tipo immobile: Negozi uffici capannoni
Stato immobile: usato
Piano: Piano terra
Camere: 2
Bagni: 1

Costi:
Prezzo € 1.000


Efficienza energetica: