home page > Annunci immobiliari in Italia > Veneto > Treviso > Conegliano > Negozi uffici capannoni in vendita > Scheda immobile

Negozi uffici capannoni in vendita a Conegliano

COMPILA IL MODULO SOTTOSTANTE PER RICEVERE MAGGIORI INFORMAZIONI







Invia la richiesta ad altre agenzie
Accetto il trattamento dei miei dati



Asteaffari.com

Viale g. E l. Olivi 38
31100 Treviso

04221781118    Riferimenti: Stefano Dalto

Conegliano
Prezzo: € 351.000
3
381
2



Descrizione:
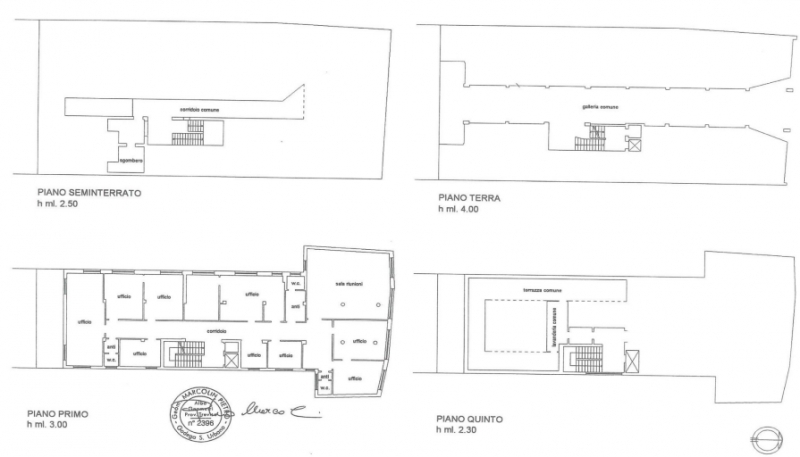
Rif. A.a.5-25vendita all'asta - ufficio al 2° piano in data 18 dicembre 2025descrizione: trattasi di un'unità immobiliare, con destinazione direzionale, che si sviluppa su un unico livello al 2° pianodel condominio denominato 'galleria centro affari e commercio', in zona centrale del comune di conegliano (tv), per una superficie di mq 376,00 mq, oltre ad un vano accessorio adibito a ripostiglio collocato al piano interrato di mq 10,00. L'unità immobiliare è composta da un ingresso, corridoio di collegamento ai vari uffici, 10 stanze e tre servizi igienici per un totale di superficie commerciale di 381,00 mq.offerta per asta : da euro 351.000,00l'immobile viene venduto tramite asta giudiziaria, ed il prezzo indicato si riferisce al prezzo minimo accettato per la partecipazione all'asta.aste-affari fornisce un servizio di assistenza e consulenza tecnica, legale, fiscale e finanziaria su acquisti all'asta e affari immobiliari, al fine di rendere più facile e sicuro l'acquisto di un immobile proveniente dal mercato giudiziario oppure da occasioni presenti sul mercato immobiliare.analisi di fattibilità, tecnica, burocratica, finanziaria, legale, esame problematiche e vincoli, conteggio costi accessori ed occulti, assistenza in tutte le fasi della procedura fino alla consegna delle chiavi dell'immobile.l'acquisto può essere finanziato tramite mutuo, e, ove possibile anche in pre-asta tramite procedura di saldo-stralcio. per info aggiuntive, prenotazione visione, consulenza ed assistenza su asta : studio di consulenza : 'aste-affari.com' info: sei un debitore ? chiamaci ! abbiamo soluzioni personalizzate anche per te.




Caratteristiche immobile:
Codice inserzione: 1763092242
Rif. Annuncio: A.A. 5-25
Provincia: Treviso
Comune: Conegliano
Superficie (Mq) : 381 Mq.
Tipo immobile: Negozi uffici capannoni
Stato immobile: usato
Anno costruzione/ristrutturazione: 1959
Piano: 2
Bagni: 3

Costi:
Prezzo € 351.000


Efficienza energetica:
Classe energetica: Immobile non soggetto all'obbligo di certificazione
Riscaldamento: autonomo