home page > Annunci immobiliari in Italia > Veneto > Treviso > Cornuda > Negozi uffici capannoni in vendita > Scheda immobile

Negozi uffici capannoni in vendita a Cornuda

COMPILA IL MODULO SOTTOSTANTE PER RICEVERE MAGGIORI INFORMAZIONI







Invia la richiesta ad altre agenzie
Accetto il trattamento dei miei dati



Asteaffari.com

Viale g. E l. Olivi 38
31100 Treviso

04221781118    Riferimenti: Stefano Dalto

Cornuda
Prezzo: € 288.450
1877
1
1



Descrizione:
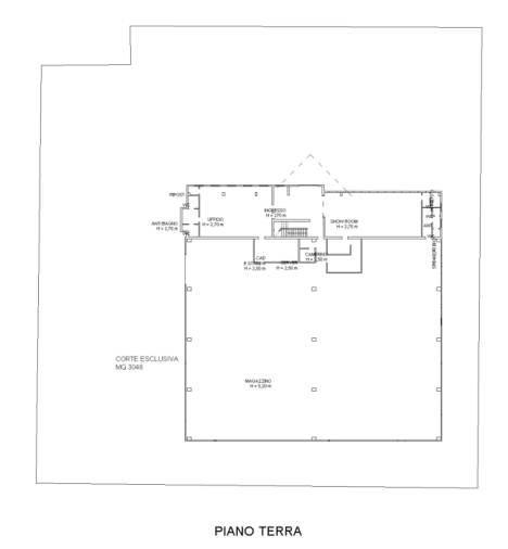
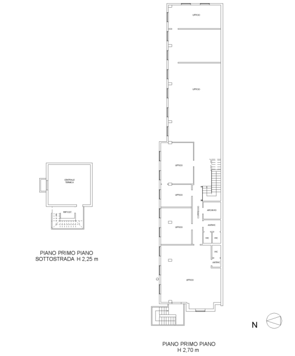
Rif. A.a.83-24vendita all'asta - opificio direzionale e commerciale su 2 livelli in data 10 marzo 2026descrizione: trattasi di un complesso immobiliare a destinazione produttiva e direzionale, situato in zona industriale periferica a prevalente destinazione artigianale nel comune di cornuda (tv). L'immobile si compone di un capannone produttivo con annessi uffici e locali direzionali distribuiti su più livelli, oltre a piazzali, parcheggi e spazi verdi pertinenziali. Superficie del lotto: circa 4.634,00 mq. Superficie commerciale: circa 1.877,00 m l'immobile viene venduto tramite asta giudiziaria, ed il prezzo indicato si riferisce al prezzo minimo accettato per la partecipazione all'asta.aste-affari fornisce un servizio di assistenza e consulenza tecnica, legale, fiscale e finanziaria su acquisti all'asta e affari immobiliari, al fine di rendere più facile e sicuro l'acquisto di un immobile proveniente dal mercato giudiziario oppure da occasioni presenti sul mercato immobiliare.analisi di fattibilità, tecnica, burocratica, finanziaria, legale, esame problematiche e vincoli, conteggio costi accessori ed occulti, assistenza in tutte le fasi della procedura fino alla consegna delle chiavi dell'immobile.l'acquisto può essere finanziato tramite mutuo, e, ove possibile anche in pre-asta tramite procedura di saldo-stralcio.prezzo minimo base asta : da euro 288.450,00per info aggiuntive, prenotazione visione, consulenza ed assistenza su asta :studio di consulenza : 'aste-affari.com'info: un debitore ? chiamaci ! abbiamo soluzioni personalizzate anche per te.




Caratteristiche immobile:
Codice inserzione: 1769763495
Rif. Annuncio: A.A. 83-24
Provincia: Treviso
Comune: Cornuda
Superficie (Mq) : 1877 Mq.
Tipo immobile: Negozi uffici capannoni
Stato immobile: usato
Anno costruzione/ristrutturazione: 1980
Piano: 1
Arredato:
Posti auto scoperti: 1 posto auto

Costi:
Prezzo € 288.450


Efficienza energetica:
Classe energetica: Immobile non soggetto all'obbligo di certificazione
Riscaldamento: autonomo