home page > Annunci immobiliari in Italia > Veneto > Treviso > Fonte > Negozi uffici capannoni in vendita > Scheda immobile

Negozi uffici capannoni in vendita a Fonte

COMPILA IL MODULO SOTTOSTANTE PER RICEVERE MAGGIORI INFORMAZIONI







Invia la richiesta ad altre agenzie
Accetto il trattamento dei miei dati



Sartori re srl

Piazza de fabris 37
36055 Nove (VI)

0424590116    0    Riferimenti: Dario Sartori

Fonte
Prezzo: € 135.000
A1
132
1



Descrizione:
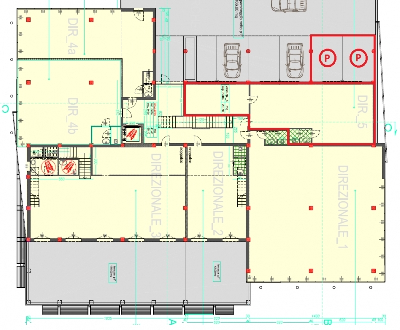
Ottima opportunità di affitto per un ufficio di 105 mq nel comune di fonte (tv), all'interno del roxius one center, un contesto dinamico con forte visibilità dalla strada provinciale che collega bassano del grappa ad asolo e montebelluna, con ampia disponibilità di parcheggi.situato al primo piano di una moderna palazzina commerciale/direzionale, questo spazio è perfetto per soddisfare le vostre esigenze professionali.l'ufficio offre una generosa metratura, ideale per organizzare il vostro lavoro in modo efficiente. Inoltre, potrete godere di due posti auto coperti esclusivi, garantendo comodità e sicurezza per voi e i vostri dipendenti.la posizione in questa area dinamica vi permetterà di accedere facilmente a servizi, negozi e mezzi pubblici. Un'opportunità unica per migliorare la vostra attività in un ambiente moderno e funzionale. Non perdete l'occasione, contattateci oggi per ulteriori dettagli e per organizzare una visita.




Caratteristiche immobile:
Codice inserzione: 1775616072
Rif. Annuncio: 1775616072
Provincia: Treviso
Comune: Fonte
Superficie (Mq) : 132 Mq.
Tipo immobile: Negozi uffici capannoni
Stato immobile: usato
Anno costruzione/ristrutturazione: 2007
Piano: 1

Costi:
Prezzo € 135.000


Efficienza energetica:
Classe energetica: A1
Indice di prestazione energetica (EPgl): 6.42 kWh/mc annui