home page > Annunci immobiliari in Italia > Veneto > Treviso > Montebelluna > Negozi uffici capannoni in vendita > Scheda immobile

Negozi uffici capannoni in vendita a Montebelluna

COMPILA IL MODULO SOTTOSTANTE PER RICEVERE MAGGIORI INFORMAZIONI







Invia la richiesta ad altre agenzie
Accetto il trattamento dei miei dati



Asteaffari.com

Viale g. E l. Olivi 38
31100 Treviso

04221781118    Riferimenti: Stefano Dalto

Montebelluna
Prezzo: € 62.550
F
1
114
1
1



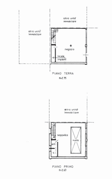
Descrizione:
Rif. A.a vendita all'asta - negozio al piano terra in data 27 gennaio 2026descrizione: trattasi di un'unità immobiliare facente parte di un fabbricato sito nel comune di montebelluna (tv), in via risorgimento n. 4/c, cosù catastalmente composta: negozio e locale impianti al piano terra; soppalco, antibagno e servizi igienici al piano primo. Superficie commerciale complessiva mq.114. l'immobile viene venduto tramite asta giudiziaria, ed il prezzo indicato si riferisce al prezzo minimo accettato per la partecipazione all'asta.aste-affari fornisce un servizio di assistenza e consulenza tecnica, legale, fiscale e finanziaria su acquisti all'asta e affari immobiliari, al fine di rendere più facile e sicuro l'acquisto di un immobile proveniente dal mercato giudiziario oppure da occasioni presenti sul mercato immobiliare.analisi di fattibilità, tecnica, burocratica, finanziaria, legale, esame problematiche e vincoli, conteggio costi accessori ed occulti, assistenza in tutte le fasi della procedura fino alla consegna delle chiavi dell'immobile.l'acquisto può essere finanziato tramite mutuo, e, ove possibile anche in pre-asta tramite procedura di saldo-stralcio.prezzo minimo base asta : da euro 62.550,00per info aggiuntive, prenotazione visione, consulenza ed assistenza su asta :studio di consulenza : 'aste-affari.com'info: un debitore ? chiamaci ! abbiamo soluzioni personalizzate anche per te.




Caratteristiche immobile:
Codice inserzione: 1764562805
Rif. Annuncio: A.A. 414-2210
Provincia: Treviso
Comune: Montebelluna
Superficie (Mq) : 114 Mq.
Tipo immobile: Negozi uffici capannoni
Stato immobile: usato
Anno costruzione/ristrutturazione: 1993
Piano: 1
Posti auto scoperti: 1 posto auto
Tipologia giardino : Condominiale
Bagni: 1

Costi:
Prezzo € 62.550


Efficienza energetica:
Classe energetica: F
Riscaldamento: autonomo