home page > Annunci immobiliari in Italia > Veneto > Treviso > Oderzo > Negozi uffici capannoni in vendita > Scheda immobile

Negozi uffici capannoni in vendita a Oderzo

COMPILA IL MODULO SOTTOSTANTE PER RICEVERE MAGGIORI INFORMAZIONI







Invia la richiesta ad altre agenzie
Accetto il trattamento dei miei dati



Cienne

Via martiri della libertà, 26
31046 Oderzo (TV)

0422815891    0422.815891    347.2460877

Oderzo
Prezzo: € 690.000
E
1400



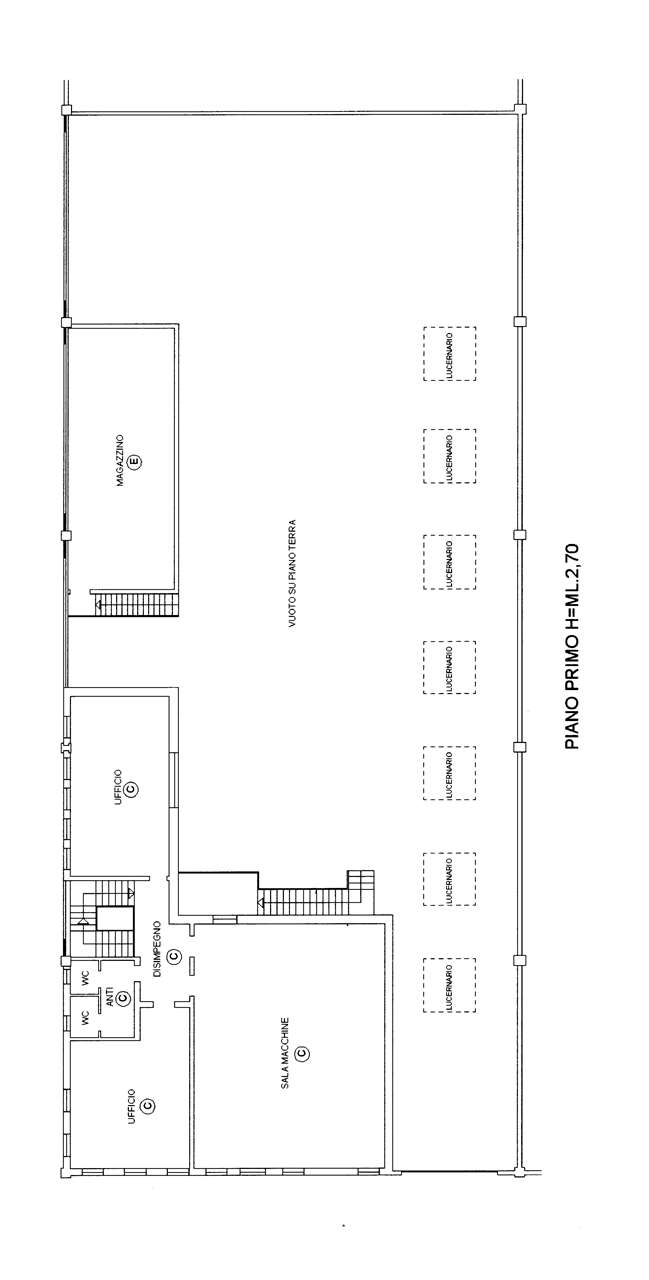
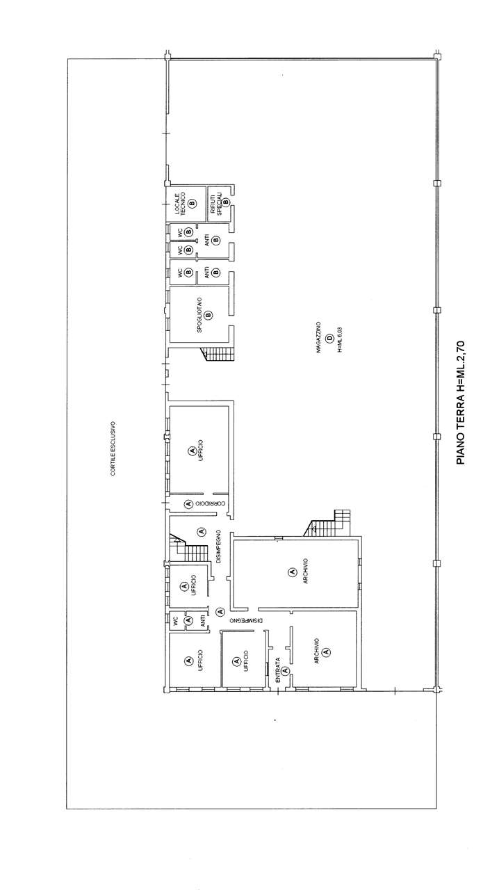
Descrizione:
Oderzo (treviso) in zona industriale vendiamo porzione di capannone ad uso industriale-artigianale-magazzino con uffici. Immobile di circa 1400 mq. Totali con uffici di circa 660 mq. Al piano terra e primo piano e magazzino di circa 750 mq. Immobile in buone condizioni generali . Scoperto di proprietà di circa 630 mq. Su due lati .classe energetica: e 28,96 kwh/m3 a




Caratteristiche immobile:
Codice inserzione: 1773360714
Rif. Annuncio: CAP690ZIOD
Provincia: Treviso
Comune: Oderzo
Superficie (Mq) : 1400 Mq.
Tipo immobile: Negozi uffici capannoni

Costi:
Prezzo € 690.000


Efficienza energetica:
Classe energetica: E
Indice di prestazione energetica (EPgl): 28.96 kWh/mc annui