home page > Annunci immobiliari in Italia > Veneto > Treviso > Vazzola > Rustici in vendita > Scheda immobile

Rustici in vendita a Vazzola

COMPILA IL MODULO SOTTOSTANTE PER RICEVERE MAGGIORI INFORMAZIONI







Invia la richiesta ad altre agenzie
Accetto il trattamento dei miei dati



Jbc immobiliare oderzo

Via roma 34
31046 Oderzo (TV)

3331973525

Vazzola
Prezzo: € 195.000
F
3
3
448
Ultimo piano
1



Descrizione:
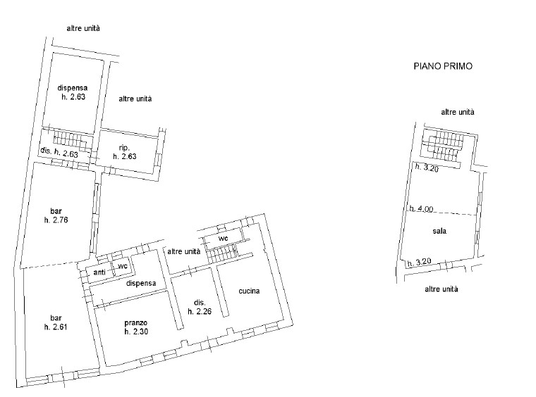
Vazzola - (tv)in frazione di tezze di piave, proponiamo in vendita intera proprietà, vicina al centro del paese e con grande visibilità, composta da:- porzione 1attività commerciale (bar) di circa 210 mq con zona pranzo adicente al banco di servizio, cucina separata, doppia dispensa, due ripostigli e due bagni (privato + clienti) ed una grande sala al piano primo molto utile per pranzi e cene con numerosi clienti.- porzione 2appartamento a destinazione residenziale, da ristrutturare, con accesso diretto dal locale commerciale, di circa 180 mq con cucina-soggiorno, due bagni, attualmente presenti due camere ma in fase di ristrutturazione si possono ricavare altre due camere, ripostiglio e soffitta.in comune ed a servizio sia dell'attività commmerciale sia dell'appartamento vi è un grande magazzino attrezzato con aria condizionata e caminetto, un annesso rustico da riqualificare per un totale di altri 60 mq circa, un area scoperta comune con accesso nel retro della proprietà oltre ad uno spazio esterno adibito a parcheggio.arredo presente da valutare in fase di trattativa.possibilità di fare richiesta alla f.i.t. Per licenza tabacchi (già presente quando il locale era attivo)disponibile da subito!per maggiori informazioni contattaci o passa in agenzia, ci trovi in:via roma 34 ad oderzo (tv) piazza drago 18, jesolo (ve)




Caratteristiche immobile:
Codice inserzione: 1762488592
Rif. Annuncio: 130
Provincia: Treviso
Comune: Vazzola
Zona: Tezze di Piave  
Superficie (Mq) : 448 Mq.
Tipo immobile: Rustici
Stato immobile: usato
Piano: Ultimo piano
Camere: 3
Garage: Doppio
Posti auto scoperti: 1 posto auto
Bagni: 3 + lavanderia

Costi:
Prezzo € 195.000


Efficienza energetica:
Classe energetica: F