home page > Annunci immobiliari in Italia > Veneto > Treviso > Mogliano Veneto > Terreni in vendita > Scheda immobile

Terreni in vendita a Mogliano Veneto

COMPILA IL MODULO SOTTOSTANTE PER RICEVERE MAGGIORI INFORMAZIONI







Invia la richiesta ad altre agenzie
Accetto il trattamento dei miei dati



Asteaffari.com

Viale g. E l. Olivi 38
31100 Treviso

04221781118    Riferimenti: Stefano Dalto

Mogliano Veneto
Prezzo: € 345.000
9373



Descrizione:
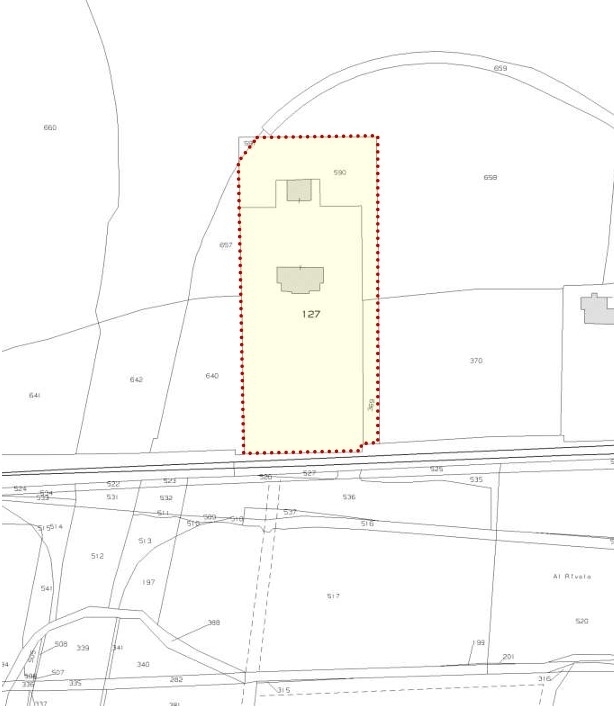
Rif. A.a.20-23vendita all'asta - terreno in data 5 febbraio 2026descrizione: trattasi di un appezzamento di terreno avente destinazione di zona per insediamenti turistici e ricreativi di circa mq 9.373 catastali tenuto a parco alberato con la presenza dei ruderi di due fabbricati di civile abitazione attualmente inagibili (ex villa calligaris) in pessimo stato conservativo (parzialmente crollati e privi di copertura). l'immobile viene venduto tramite asta giudiziaria, ed il prezzo indicato si riferisce al prezzo minimo accettato per la partecipazione all'asta.aste-affari fornisce un servizio di assistenza e consulenza tecnica, legale, fiscale e finanziaria su acquisti all'asta e affari immobiliari, al fine di rendere più facile e sicuro l'acquisto di un immobile proveniente dal mercato giudiziario oppure da occasioni presenti sul mercato immobiliare.analisi di fattibilità, tecnica, burocratica, finanziaria, legale, esame problematiche e vincoli, conteggio costi accessori ed occulti, assistenza in tutte le fasi della procedura fino alla consegna delle chiavi dell'immobile.l'acquisto può essere finanziato tramite mutuo, e, ove possibile anche in pre-asta tramite procedura di saldo-stralcio. prezzo minimo base asta : da euro 345.000 per info aggiuntive, prenotazione visione, consulenza ed assistenza su asta :studio di consulenza : 'aste-affari.com'info: un debitore ? chiamaci ! abbiamo soluzioni personalizzate!




Caratteristiche immobile:
Codice inserzione: 1765339963
Rif. Annuncio: A.A. 20-23
Provincia: Treviso
Comune: Mogliano Veneto
Superficie (Mq) : 9373 Mq.
Tipo immobile: Terreni

Costi:
Prezzo € 345.000


Efficienza energetica:
Classe energetica: Immobile non soggetto all'obbligo di certificazione