home page > Annunci immobiliari in Italia > Veneto > Treviso > Paese > Terreni in vendita > Scheda immobile

Terreni in vendita a Paese

COMPILA IL MODULO SOTTOSTANTE PER RICEVERE MAGGIORI INFORMAZIONI







Invia la richiesta ad altre agenzie
Accetto il trattamento dei miei dati



Asteaffari.com

Viale g. E l. Olivi 38
31100 Treviso

04221781118    Riferimenti: Stefano Dalto

Paese
Prezzo: € 56.250
1220



Descrizione:
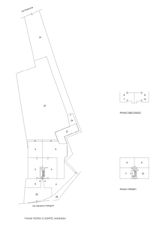
Rif. A.a.551-23vendita all'asta - terreno edificabile residenziale in data 17 dicembre 2025descrizione: trattasi di lotto di terreno di 1220 mq, inserito nel centro storico del comune di paese (tv), edificabile, allo stato incolto.l'immobile viene venduto tramite asta giudiziaria, ed il prezzo indicato si riferisce al prezzo minimo accettato per la partecipazione all'asta.aste-affari fornisce un servizio di assistenza e consulenza tecnica, legale, fiscale e finanziaria su acquisti all'asta e affari immobiliari, al fine di rendere più facile e sicuro l'acquisto di un immobile proveniente dal mercato giudiziario oppure da occasioni presenti sul mercato immobiliare.analisi di fattibilità, tecnica, burocratica, finanziaria, legale, esame problematiche e vincoli, conteggio costi accessori ed occulti, assistenza in tutte le fasi della procedura fino alla consegna delle chiavi dell'immobile.l'acquisto può essere finanziato tramite mutuo, e, ove possibile anche in pre-asta tramite procedura di saldo-stralcio. prezzo minimo base asta : da euro 56.250,00 per info aggiuntive, prenotazione visione, consulenza ed assistenza su asta :studio di consulenza : 'aste-affari.com'info: un debitore ? chiamaci ! abbiamo soluzioni personalizzate!




Caratteristiche immobile:
Codice inserzione: 1762832922
Rif. Annuncio: A.A. 551-23
Provincia: Treviso
Comune: Paese
Superficie (Mq) : 1220 Mq.
Tipo immobile: Terreni

Costi:
Prezzo € 56.250


Efficienza energetica:
Classe energetica: Immobile non soggetto all'obbligo di certificazione