home page > Annunci immobiliari in Italia > Veneto > Treviso > Ponzano Veneto > Terreni in vendita > Scheda immobile

Terreni in vendita a Ponzano Veneto

COMPILA IL MODULO SOTTOSTANTE PER RICEVERE MAGGIORI INFORMAZIONI







Invia la richiesta ad altre agenzie
Accetto il trattamento dei miei dati



Asteaffari.com

Viale g. E l. Olivi 38
31100 Treviso

04221781118    Riferimenti: Stefano Dalto

Ponzano Veneto
Prezzo: € 75.840
7884



Descrizione:
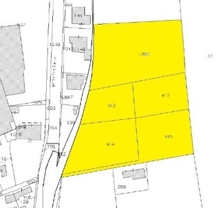
Rif. A.a.53-24vendita all'asta - terreno agricolo in data 13 novembre 2025descrizione: trattasi di terreni, aventi una superficie catastale dichiarata in complessivi 7.884 mq, collocati in un ambito agricolo compreso tra l'area residenziale a bassa densità sviluppata attorno alla sp56 (ad ovest) e la zona industriale del comune di ponzano veneto. Attualmente i terreni non risultavano coltivati, ma lasciati a prato. l'immobile viene venduto tramite asta giudiziaria, ed il prezzo indicato si riferisce al prezzo minimo accettato per la partecipazione all'asta. aste-affari fornisce un servizio di assistenza e consulenza tecnica , legale, fiscale e finanziaria su acquisti all'asta e affari immobiliari , al fine di rendere più facile e sicuro l'acquisto di un immobile proveniente dal mercato giudiziario oppure da occasioni presenti sul mercato immobiliare . analisi di fattibilità , tecnica, burocratica, finanziaria , legale , esame problematiche e vincoli , conteggio costi accessori ed occulti, assistenza in tutte le fasi della procedura fino alla consegna delle chiavi dell'immobile .l'acquisto può essere finanziato tramite mutuo , e , ove possibile , anche in pre-asta tramite procedura di saldo-stralcio .soluzioni personalizzate per i debitori .prezzo minimo base asta : euro 75.840,00per info aggiuntive , prenotazione visione, consulenza ed assistenza studio di consulenza : 'aste-affari.com'info :




Caratteristiche immobile:
Codice inserzione: 1760064709
Rif. Annuncio: A.A. 53-24
Provincia: Treviso
Comune: Ponzano Veneto
Superficie (Mq) : 7884 Mq.
Tipo immobile: Terreni

Costi:
Prezzo € 75.840


Efficienza energetica:
Classe energetica: Immobile non soggetto all'obbligo di certificazione