home page > Annunci immobiliari in Italia > Veneto > Treviso > Quinto di Treviso > Terreni in vendita > Scheda immobile

Terreni in vendita a Quinto di Treviso

COMPILA IL MODULO SOTTOSTANTE PER RICEVERE MAGGIORI INFORMAZIONI







Invia la richiesta ad altre agenzie
Accetto il trattamento dei miei dati



Agenzia immobiliare i portici di enrico favaro

Via cercariolo 2/a
30037 Scorzè (VE)

0413130140    +39 328 0064131    Riferimenti: Enrico Favaro

Quinto di Treviso
Prezzo: € 100.000
2500



Descrizione:
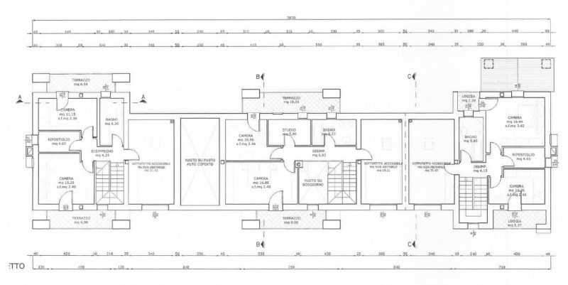
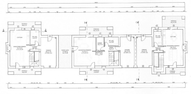
Santa cristina -treviso - in zona tranquilla circondata dalla natura, si propone in vendita lotto edificabile di 2500mq. Con progetto approvato e oneri pagati per la realizzazione di una tri familiare con capacità edificatoria pari a 1800 metri cubi.il progetto può essere modificato per la realizzazione di una bifamiliare o di una casa singola con ampio scoperto esclusivo, il tutto sempre nel rispetto delle normative comunali vigenti.la vendita del lotto è soggetta a imposta di registro. metratura:superficie del lotto : 2500 mq. superficie edificabile : 1800 metri cubi rif.: 38.scri.t.eprezzo: € 100.000,00sei interessato?hai trovato la casa che desideravi da tanto tempo, ma hai bisogno di un mutuo per far avverare il tuo sogno? l'agenzia immobiliare i portici ti offre la consulenza di professionisti del settore che ti aiuteranno a trovare il mutuo più accessibile in base alle tue disponibilità economiche, aiutandoti ad orientarti nella scelta tra mutuo a tasso fisso, variabile o misto e ad usufruire delle agevolazioni fiscali previste. Il tutto nella massima trasparenza e professionalità.per ulteriori informazioni non esitare a contattarci+39 :// (ve) 30037, via cercariolo 2/aseguici anche su facebook e instagram per rimanere sempre aggiornato sulle nostre proposte.si intende precisare che gli indirizzi presenti negli annunci non sono identificativi dell'ubicazione precisa dell'immobile,danno un riferimento solo generico della zona al cliente che ricerca, al fine di tutelare la privacy e riservatezza del venditor




Caratteristiche immobile:
Codice inserzione: 1773200345
Rif. Annuncio: 38.SCRI.T.E
Provincia: Treviso
Comune: Quinto di Treviso
Zona: Santa Cristina  
Superficie (Mq) : 2500 Mq.
Tipo immobile: Terreni

Costi:
Prezzo € 100.000


Efficienza energetica:
Classe energetica: Immobile non soggetto all'obbligo di certificazione